Instant Valuation
Instant Valuation

Start your property search here

To Let
4 Bedroom
House

£3,650 pcm

Move Revolution are excited to offer this private gated home just next to the popular Bolney Village. Available 27th November. 4 bedroom, 3 bathroom.

  • Bedroomsfour Bedrooms4
  • Bedroomsthree Bathrooms3
  • Bedroomsone Receptions1

Cowfold Road, Bolney, RH17

£3,650 pcm

Move Revolution are excited to offer this private gated home just next to the popular Bolney Village. Available 27th November. 4 bedroom, 3 bathroom.

Move Revolution is excited to offer this rural home with land in Sussex. This private gated plot sits on the border of Bolney and Cowfold on A272 and benefits from bountiful space both outside and inside.
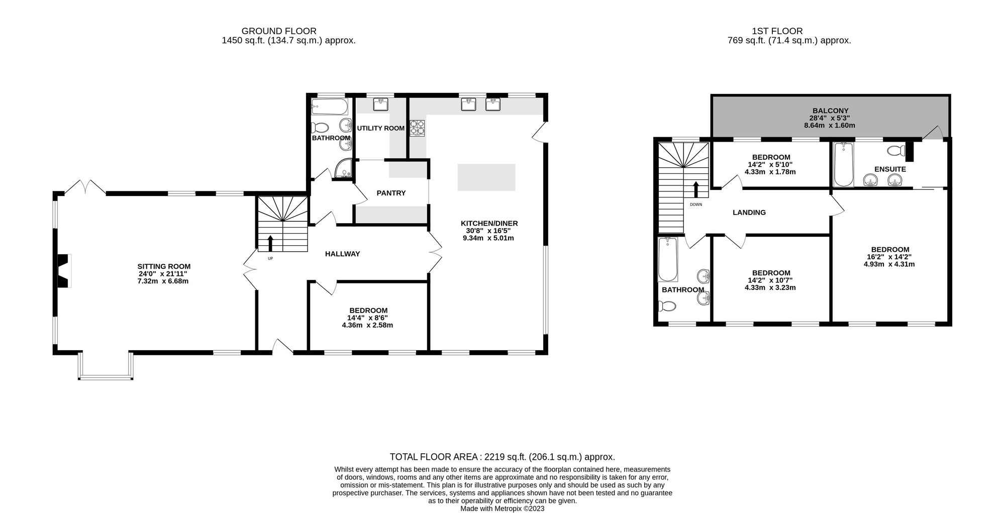
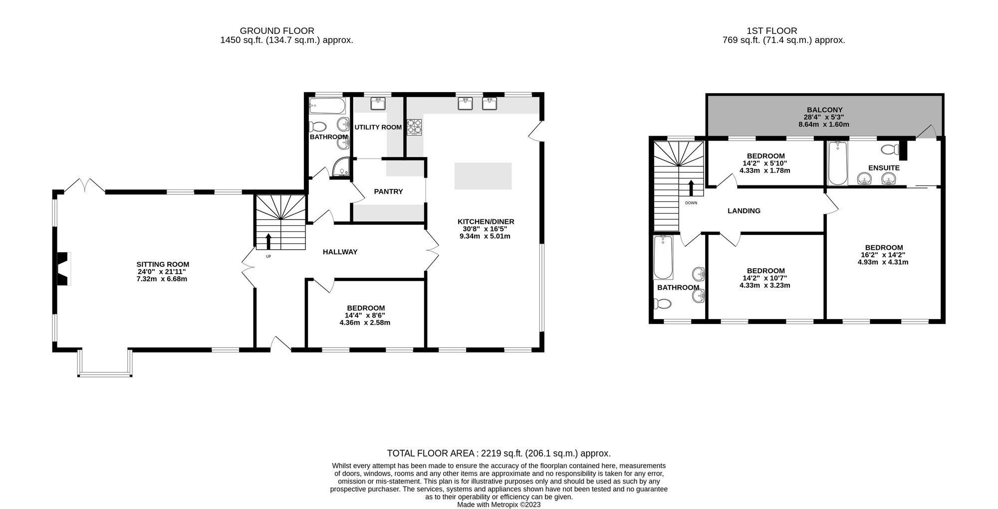
The house itself is over 2 floors; A large entrance flows easily through to all living spaces and upstairs. The living room is generously sized with natural light and high ceilings, highlighting the beautifully finished mouldings and coving. The open plan kitchen and dining room to the other side of the home has appliances integrated and a walk through wet bar/pantry. Attached to this is a utility room and downstairs bathroom. In addition to the typical living spaces, there is also room perfect for a home office or fourth bedroom.
Upstairs is a family bathroom, two double bedrooms and one main bedroom with a large en-suite and balcony overlooking the back garden and some paddocks.
The house sits amongst a large gated driveway and landscaped gardens linking the front and back together with foliage and paths.

Available from 27th November 2025.

Example Figures below:

Rent: £3650pcm

Security Deposit: £4211.53 (5 weeks’ rent)

Holding Deposit: £842.30 (1 weeks’ rent)

Move in Balance : 1st months’ rent + Security deposit – Holding Deposit.

LOCATION
Highview is located in a rural setting just in between the villages of Cowfold and Bolney and directly off of the A272. The perfect location for a touch of the countryside but amenities close by.
The plot itself sits directly next to stables and paddocks, perfect for a view of horses to add to that country living feel.
Just next to Highview on the Cowfold Road there are popular spots in Bolney Wine Estate and the Wobblegate Orchard. If cider and wine are not to taste, Horsham and Haywards Heath town are within a short drive and can offer an abundance of restaurants and leisure.

DISCLAIMER
This information is intended as a guide only and must not be relied upon as a statement of fact. This does not form the basis of a contract of any part thereof. The descriptions, distances and other information are believed to be correct but their accuracy is not guaranteed. Any intending tenant must therefore satisfy themselves by inspection or otherwise as to their correctness. We reserve the right to alter the specification without notice and substitute materials, equipment or fittings for similar quality.

OVERVIEW
Move Revolution is excited to offer this rural home with land in Sussex. This private gated plot sits on the border of Bolney and Cowfold on A272 and benefits from bountiful space both outside and inside.
The house itself is over 2 floors; A large entrance flows easily through to all living spaces and upstairs. The living room is generously sized with natural light and high ceilings, highlighting the beautifully finished mouldings and coving. The open plan kitchen and dining room to the other side of the home has appliances integrated and a walk through wet bar/pantry. Attached to this is a utility room and downstairs bathroom. In addition to the typical living spaces, there is also room perfect for a home office or fourth bedroom.
Upstairs is a family bathroom, two double bedrooms and one main bedroom with a large en-suite and balcony overlooking the back garden and some paddocks.
The house sits amongst a large gated driveway and landscaped gardens linking the front and back together with foliage and paths.

There are stables and paddocks privately rented with separate access parallel to the rental property. Enquiries also welcome.