Instant Valuation
Instant Valuation

Start your property search here

Sold STC
3 Bedroom
House

Guide Price £400,000

Guide Price £400,000 - £415,000 Providing flexible accommodation over three floors, a Victorian home with westerly aspect garden, three good size bedrooms and two reception rooms.

  • Bedroomsthree Bedrooms3
  • Bedroomsone Bathrooms1
  • Bedroomstwo Receptions2

Fox Hill, Haywards Heath, RH16

Guide Price £400,000

Guide Price £400,000 – £415,000 Providing flexible accommodation over three floors, a Victorian home with westerly aspect garden, three good size bedrooms and two reception rooms.

Guide Price £400,000 – £415,000

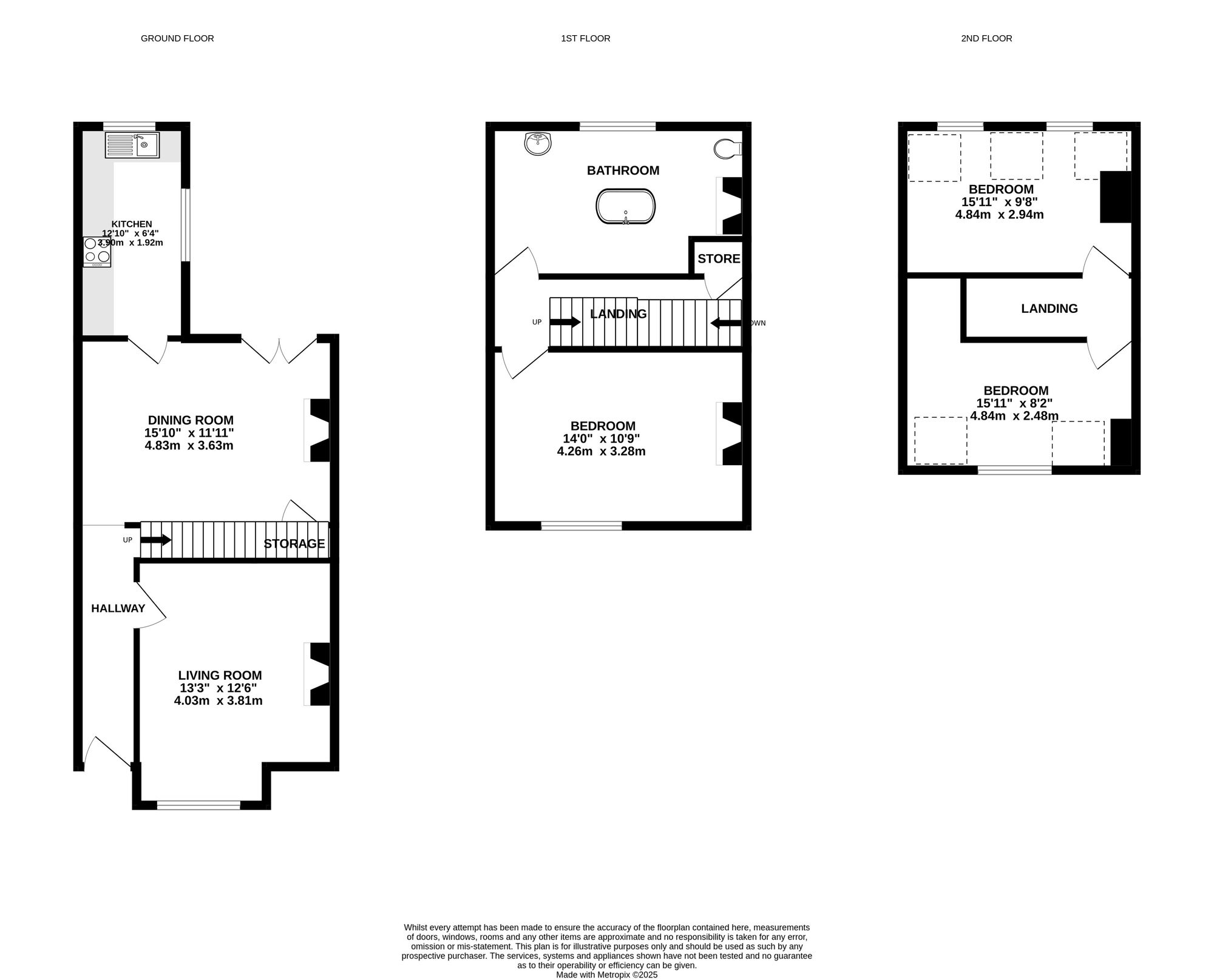
At a first glance, you might not be looking for a mid-terraced family house. But, this Victorian property, located on the southern side of Haywards Heath, is a real gem and one that buyers will fall in love with. The theme throughout is wooden floorboards, high ceilings and white walls that creates a great sense of space. The accommodation is pretty impressive too, just over 1,250 square feet of accommodation spread over three floors.

As you go through the front door, the sitting room is located to the front, whilst the dining room and kitchen are to the rear. This is a great entertaining space and perfect in the summer months to open the french doors which lead you out to the garden. The kitchen enjoys a double aspect, with views over the garden, space for a range cooker and storage. On the first floor is the master bedroom and the family bathroom. The master bedroom is located to the front and is a good size, whilst the bathroom is to the rear. The bathroom was previously a bedroom and not only is a great size, but you’ll find a roll top bath, high level WC and views in a westerly direction, this is one of our favourite rooms in the house. Stairs rise from the first floor to the second floor where bedrooms two and three are located. Both are a good size and bright. The rear garden has an abundance of flower and shrub borders and benefits from a westerly aspect.

The property tenure is freehold and the council tax band is D.

Location. Located on the southern side of Haywards Heath, Foxhill provides access into the town by Foxhill. A couple of doors down you’ll find The Fox And Hounds Pub, whilst for daily shopping facilities head to Sainsbuys Local on Wivelsfield Road, or The Co-op on Franklynn Road. For schools, Northlands Wood Primary Academy is within catchment and has the added benefit of a breakfast and after school club for wrap around care, whilst the secondary catchment school is Oathall Community College. Since the opening of the A272 bypass road, access out to Cuckfield and the A23/M23 is much simpler and quicker task than it used to be. To the south and on the eastern side of Burgess Hill is access to Wivelsfield Green and towards Ditchling and Brighton, whilst the A272 East leads you to Uckfield and beyond to Tunbridge Wells. Brighton can be found 15 miles to the south, whilst a short drive north takes you to Crawley and London Gatwick. The countryside is not far from your front door, National Trust facilities are located locally at Wakehurst Place and Nymans Gardens, with Sheffield Park less than 15 minutes by road. Pretty villages surround Haywards Heath and include Lindfield, Cuckfield, Ardingly and Wivelsfield Green.