Instant Valuation
Instant Valuation

Start your property search here

For Sale
3 Bedroom
Flat

Offers Over £475,000

Modern three bedroom first floor apartment at Bennat Apartments, Purley. Open-plan living/ kitchen, two balconies, en-suite master, family bathroom, views and allocated parking.

  • Bedroomsthree Bedrooms3
  • Bedroomstwo Bathrooms2
  • Bedroomsone Receptions1

Higher Drive, Bennat Apartments, CR8

Offers Over £475,000

Modern three bedroom first floor apartment at Bennat Apartments, Purley. Open-plan living/ kitchen, two balconies, en-suite master, family bathroom, views and allocated parking.

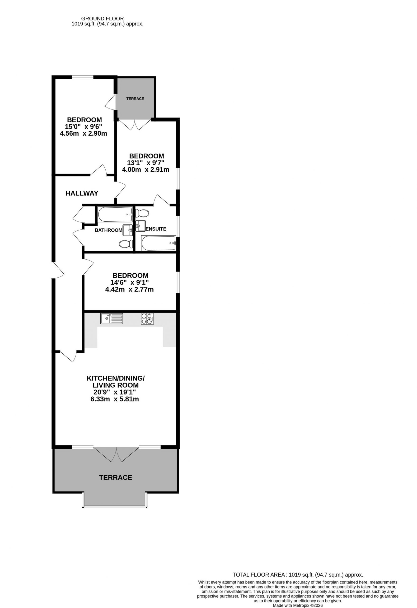
Situated within the sought after Bennat Apartments development on Higher Drive, this exceptional three bedroom first floor apartment offers contemporary living in a prime Purley location. Built in 2021, the property benefits from a modern finish throughout and well proportioned accommodation spanning the full width of the building from front to back.

The apartment is accessed via a long, welcoming hallway which leads into an impressive open-plan kitchen, living and dining area. This bright and spacious room is ideal for both everyday living and entertaining, featuring fully integrated appliances, sleek quartz work surfaces, and French doors that open onto a large, covered balcony at the front of the property.

There are three generous double bedrooms, including a spacious principal bedroom which benefits from a stylish en-suite bathroom and direct access to a second balcony located at the rear of the apartment. The remaining bedrooms are served by a modern family bathroom. Both bathrooms are finished to a high standard with elegant marble effect tiling throughout.

The property enjoys a pleasant dual aspect, with beautiful open views to the rear, enhancing the sense of space and natural light. Additional benefits include an allocated parking space and the convenience of a modern, well-maintained development.

An ideal home for families or professionals seeking a high-quality apartment in a desirable residential setting.

Tenure: Leasehold

Remaining Lease: 247 Years

Service Charge: £3000 per annum

Ground Rent: £0

EPC: Rating B

Council Tax: Band E

Location

Higher Drive is a popular residential road in Purley. The property is situated close to many local amenities and transport links.

Purley train station is within walking distance and offers an excellent service for the commuter via Southern and Thameslink services into many destinations including Clapham Junction, London Victoria and London Bridge, all commutable within half an hour. Reedham train station is also nearby. Both Gatwick Airport and the south coast can be reached with ease given the area convenient and speedy train-line services.

There are many bus routes along the Brighton Road linking Croydon, Purley and Sutton. Reedham train station is also situated within a short walk.

Purley Town Centre is home to a parade of local shops, cafes and restaurants as well as Tesco Extra supermarket and Lord Roberts on The Green; which is a perfect spot for a coffee.

Purley is highly renowned for its excellent Primary and Secondary schools including Beaumont Primary and Riddlesdown Collegiate; both of which are rated ‘Outstanding’ by Ofsted.

For a leisurely Sunday afternoon stroll, Foxley Wood Nature Reserve is a wonderful open green space situated just opposite Highland Road itself. 

Similar Property
£500,000 | Sold STC
A modern, three-bedroom family home offered to the market in a quiet cul-de-sac location close to local shops and transport links.
Similar Property
£425,000 | Sold STC
Guide Price £425,000 to £450,000 A modern, three bedroom apartment situated on the ground floor benefitting from two bathrooms,...