Instant Valuation
Instant Valuation

Start your property search here

For Sale
3 Bedroom
House

Offers Over £500,000

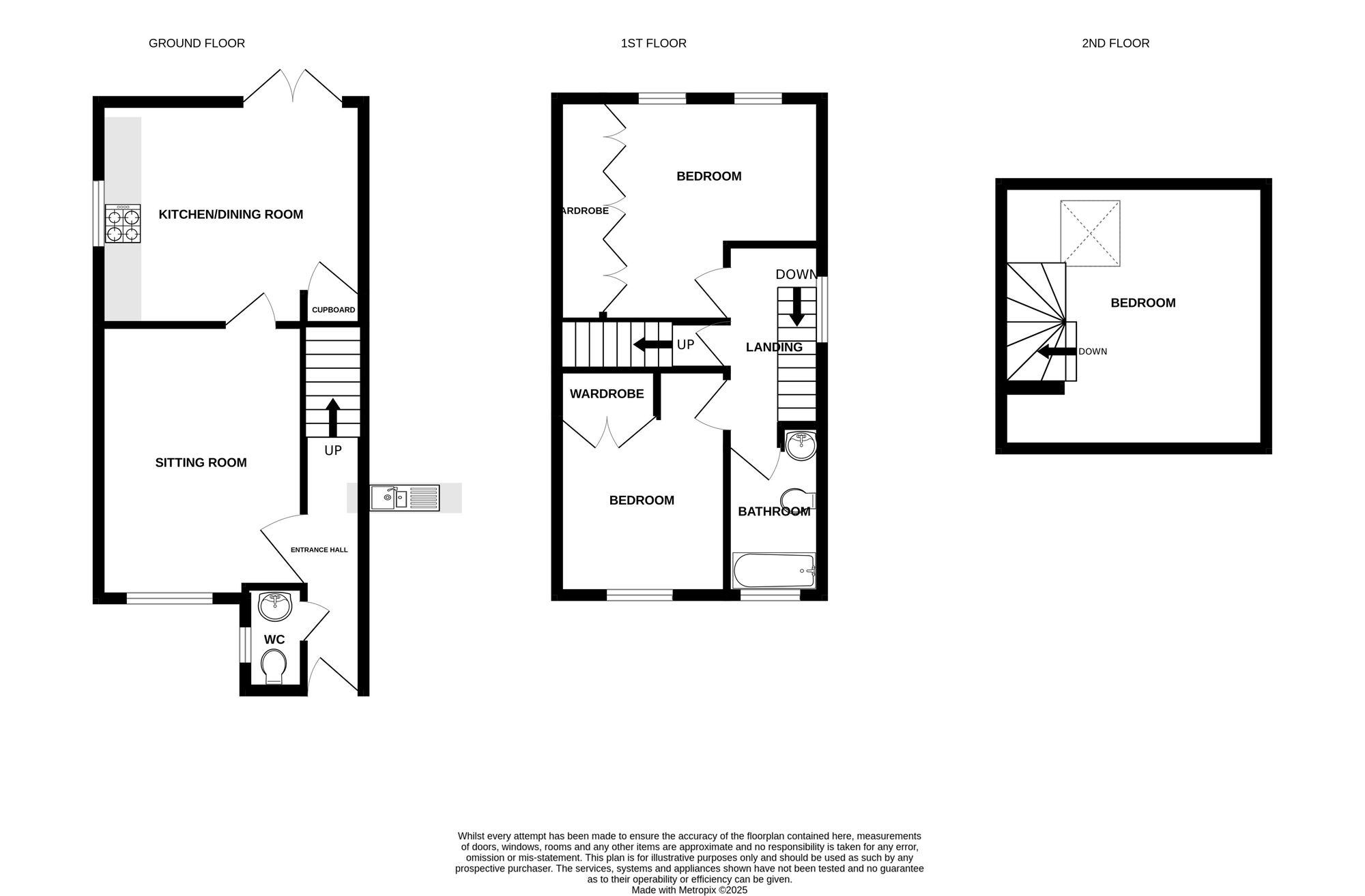
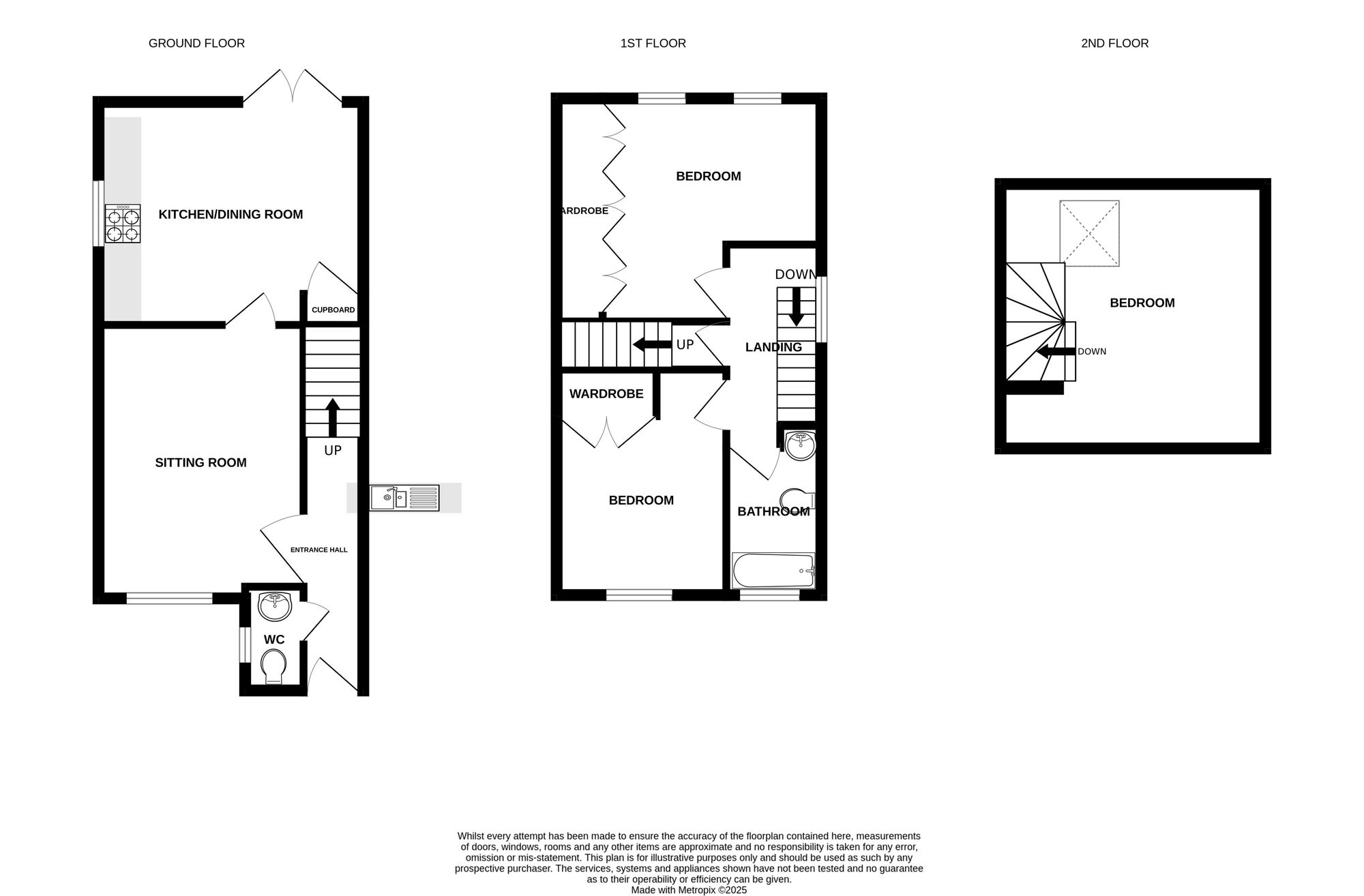
Three bedroom modern family home, Stunning kitchen/Diner, 3 double bedrooms, Modern bathroom, downstairs WC, Generous rear garden, driveway for 4 cars, Short walk to shops, school and mainline station.

  • Bedroomsthree Bedrooms3
  • Bedroomsone Bathrooms1
  • Bedroomstwo Receptions2

Lincolns Mead, Lingfield, RH7

Offers Over £500,000

Three bedroom modern family home, Stunning kitchen/Diner, 3 double bedrooms, Modern bathroom, downstairs WC, Generous rear garden, driveway for 4 cars, Short walk to shops, school and mainline station.

Nestled in a tranquil residential cul-de-sac, this beautifully presented three-bedroom family home offers the perfect blend of comfort and modern convenience. The bright and airy living room welcomes you with its inviting and warm ambience, leading seamlessly to the modernised kitchen/dining room with sleek worktops, cabinetry and built-in appliances, ideal for family meals and gatherings. The property boasts three generously proportioned double bedrooms all equipped with built-in storage, along with a newly fitted bathroom and a convenient downstairs cloakroom for added practicality.

Step into the splendid outdoor space, where a generous rear garden beckons for relaxing afternoons or summer barbecues with loved ones. The tiled patio provides a charming setting for al fresco dining and enjoying the fresh air. The summer house with power connection offers versatility, currently used for storage but has the potential to be converted into a useful home office, hobby room or games room. Convenience is key with up to 4 off-street parking spaces and the village centre, local primary school and mainline station are just a short walk away. This gorgeous home provides a perfect balance of indoor comfort and outdoor bliss in a family-friendly neighbourhood.

Similar Property
£575,000 | For Sale
Elegant Victorian 3 bedroom ground floor apartment with 1,463 sq ft of living space. High ceilings, original features & off-st...
Similar Property
£475,000 | For Sale
Guide price £475,000-£485,000. Modern townhouse in serene community near town centre and stations. Versatile layout, en-suite to...