Instant Valuation
Instant Valuation

Start your property search here

For Sale
1 Bedroom
Apartment

Prices From £280,000

*One Bed Apartments from £280,000* Stylish, modern homes perfectly positioned in a sought-after and well-connected area.Beautifully presented apartments within exclusive new build development.

  • Bedroomsone Bedrooms1
  • Bedroomsone Bathrooms1
  • Bedroomsone Receptions1

The Pines, Woodcote Valley Road, Purley, CR8

Prices From £280,000

*One Bed Apartments from £280,000* Stylish, modern homes perfectly positioned in a sought-after and well-connected area.Beautifully presented apartments within exclusive new build development.

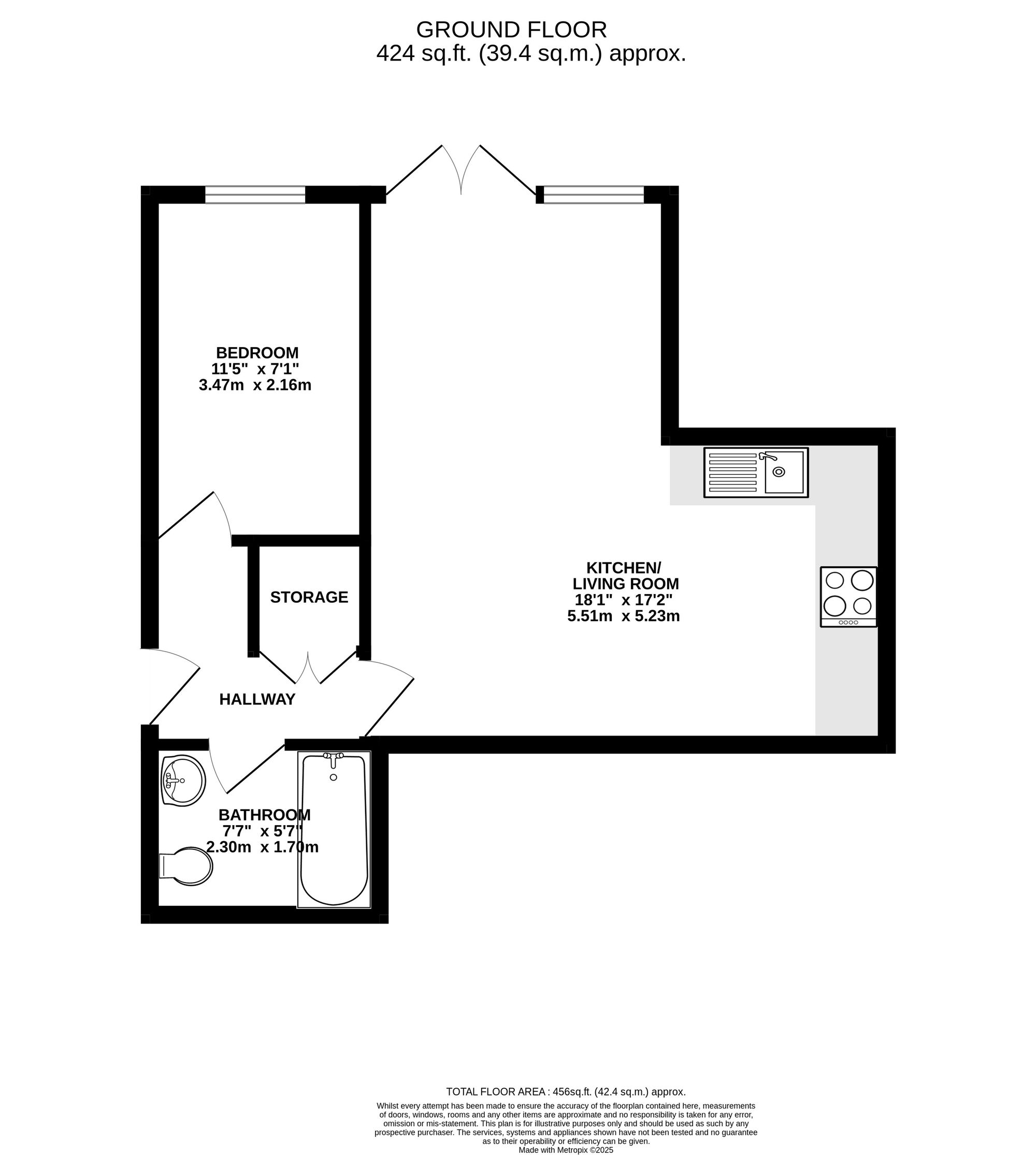
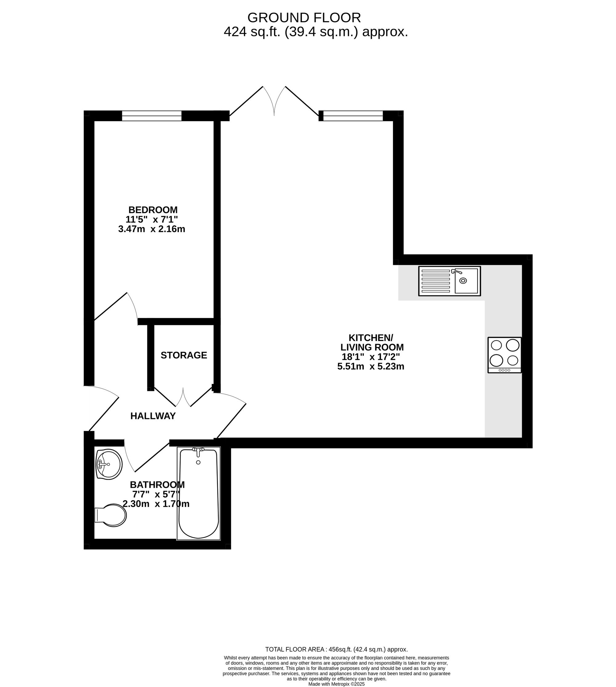
Located on the desirable Woodcote Valley Road in Purley, this beautifully presented one-bedroom flat forms part of an exclusive new build development of just seven apartments, offering a stylish and contemporary living environment in a well-connected residential setting.

Offered with a Share of Freehold, the one-bedroom apartments within the development feature thoughtfully designed layouts, including a bright open-plan living and dining area, a modern fitted kitchen with premium Bosch integrated appliances, including a built-in gas oven, fridge freezer, washing machine, and dishwasher alongside a generous bedroom and a sleek, high-quality bathroom. Finished to a high specification, highlights include luxury quartz stone worktops, contemporary grey oak-style flooring, and LED lighting throughout, making these homes ideal for modern living whether you’re a first-time buyer, investor, or looking to downsize.

All apartments are equipped with a video entry intercom system for added security and convenience. Built-in storage is also provided in selected apartments for added practicality.

Most of the apartments in this boutique development enjoy private outdoor spaces such as gardens, patios, or terraces, while others benefit from access to landscaped communal gardens, offering a perfect mix of privacy and shared green space. Residents also benefit from access to a communal patio/BBQ area and an outdoor children’s play area, enhancing the sense of community and lifestyle appeal.

There is onsite parking available for most units, including 4 EV-ready parking spaces with dedicated charging points, future-proofing the development for electric vehicle owners.

Ideally positioned, the property is just a short distance from Purley town centre and Purley Station, providing fast and frequent rail connections to London Bridge, London Victoria, and Gatwick Airport. Local shops, cafés, green spaces, and well-regarded schools including nearby Riddlesdown Common, are all within easy reach.

Tenure: Share of Freehold

EPC: TBD

Council Tax: TBD

This is a fantastic opportunity to secure a quality home in one of Purley’s most sought-after locations, offering a perfect balance of luxury, convenience, and community living.

*Disclaimer – Photography in this marketing may be taken from more than one unit within The Pines development to show variation in apartment offerings. Information is intended as a guide only and must not be relied upon as a statement of fact. This does not form the basis of a contract of any part thereof. The descriptions, distances and other information are believed to be correct, but their accuracy is not guaranteed. Any intending purchaser must therefore satisfy themselves by inspection or otherwise as to their correctness. We reserve the right to alter the specification without notice and substitute materials, equipment or fittings for similar quality.

Similar Property
£300,000 | Sold STC
Guide Price - £300,000 to £325,000. Completed in 2021, contemporary apartment close to amenities. 3rd floor with open-plan kitch...
Similar Property
£300,000 | Sold STC
Guide Price - £300,000 to £325,000. Stylish ground floor one bedroom maisonette with open-plan living, bi-fold doors to private ...