Instant Valuation
Instant Valuation

Start your property search here

Sold STC
3 Bedroom
House

Guide Price £650,000

Beautifully presented, a spacious Edwardian home with three double bedrooms and two bathrooms, large garden, garage, outdoor garden/office and parking.

  • Bedroomsthree Bedrooms3
  • Bedroomstwo Bathrooms2
  • Bedroomsone Receptions1

Bolney Road, Ansty, RH17

Guide Price £650,000

Beautifully presented, a spacious Edwardian home with three double bedrooms and two bathrooms, large garden, garage, outdoor garden/office and parking.

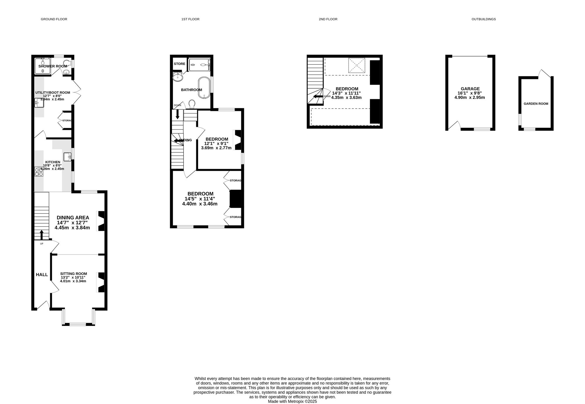
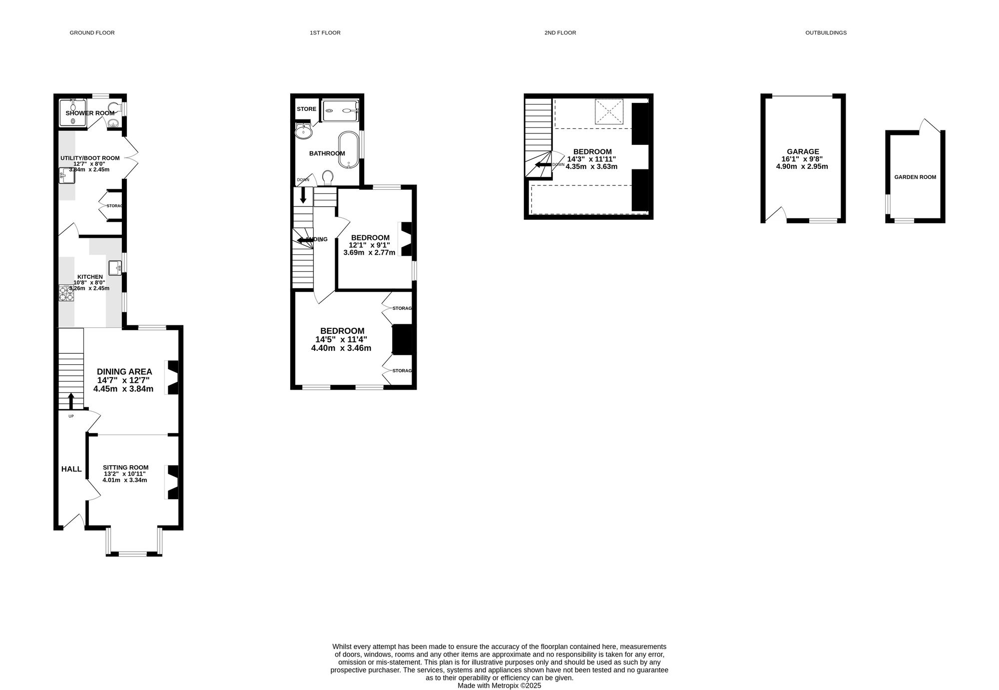
Overview. If you are searching for a property with character, the moment you walk up to the front door of this Edwardian home you are taken in by its beauty. Every room provides you with a reminder of what a house of this age offers. Stepping into the double aspect sitting and dining area, the square bay to the front and its sash windows instantly stand out, with the southerly aspect allowing the light to flood in and bounce off the stripped wood flooring. Formally two rooms, this works perfectly as one large open space, though the two doors allow a buyer to revert back to separate rooms if required. The kitchen combines wood work surfaces with a concrete floor and ample storage. The utility/boot room is a great size – and not only is home to the additional sink and dishwasher but has space for an American style fridge and is the location of the boiler. Built in 2011, this extension provides access to the garden and into the shower room.

On the first floor are two bedrooms. Bedroom one is located to the front where the matching wardrobes combine with the south facing sash windows. The bedroom that overlooks the rear garden enjoys a double aspect and a fireplace. The twist of modern and a character finish to the bathroom works beautifully. Buyers will no doubt love the large walk-in shower and the free-standing bath. You’ll find on the second floor the loft conversion which was completed in the 1990’s and provides a double bedroom with eaves storage.

The large mature garden is a combination of mature shrub boarders, entertaining spaces and benefits from sunlight throughout the day. The garden room offers a flexible space that can be used as an office to work from home, a gym or a studio. We love the position of the windows which allow you to gaze over the garden and towards the house. The garage provides additional storage, whilst there is parking for two cars at the rear.

The property tenure is freehold and the council tax band is E.

LOCATION. Ansty is a village located to the west of Haywards Heath, between Cuckfield and the A/M23. Within walking distance is Ansty football/cricket and social club with events on throughout the year, whilst at the top of the road is a petrol station and a Spar for daily essentials. Cuckfield boasts an array of independent shops coupled with a thriving community. Our favourite places to eat are at The Talbot and The Rose And Crown, whilst for a more special occasions, you could try the Michelin starred Ockenden Manor & Spa which is in the heart of the village. Catchment schools are both in Cuckfield; Holy Trinity Primary School and Warden Park Secondary School, both rated as good in their most recent Ofsted report. Haywards Heath station where trains to London Victoria and London Bridge are under an hour can be found three miles to the east. There is easy access from Bolney Road takes you to the A/M23, with Brighton being 20 minutes to the south and Gatwick Airport 15 minutes to the north.

Similar Property
£700,000 | For Sale
Nestled in a tranquil enclave adjacent to a serene reservoir, this charming 3-bedroom semi-detached house offers a harmonious blen...