Instant Valuation
Instant Valuation

Start your property search here

For Sale
2 Bedroom
Bungalow

£575,000

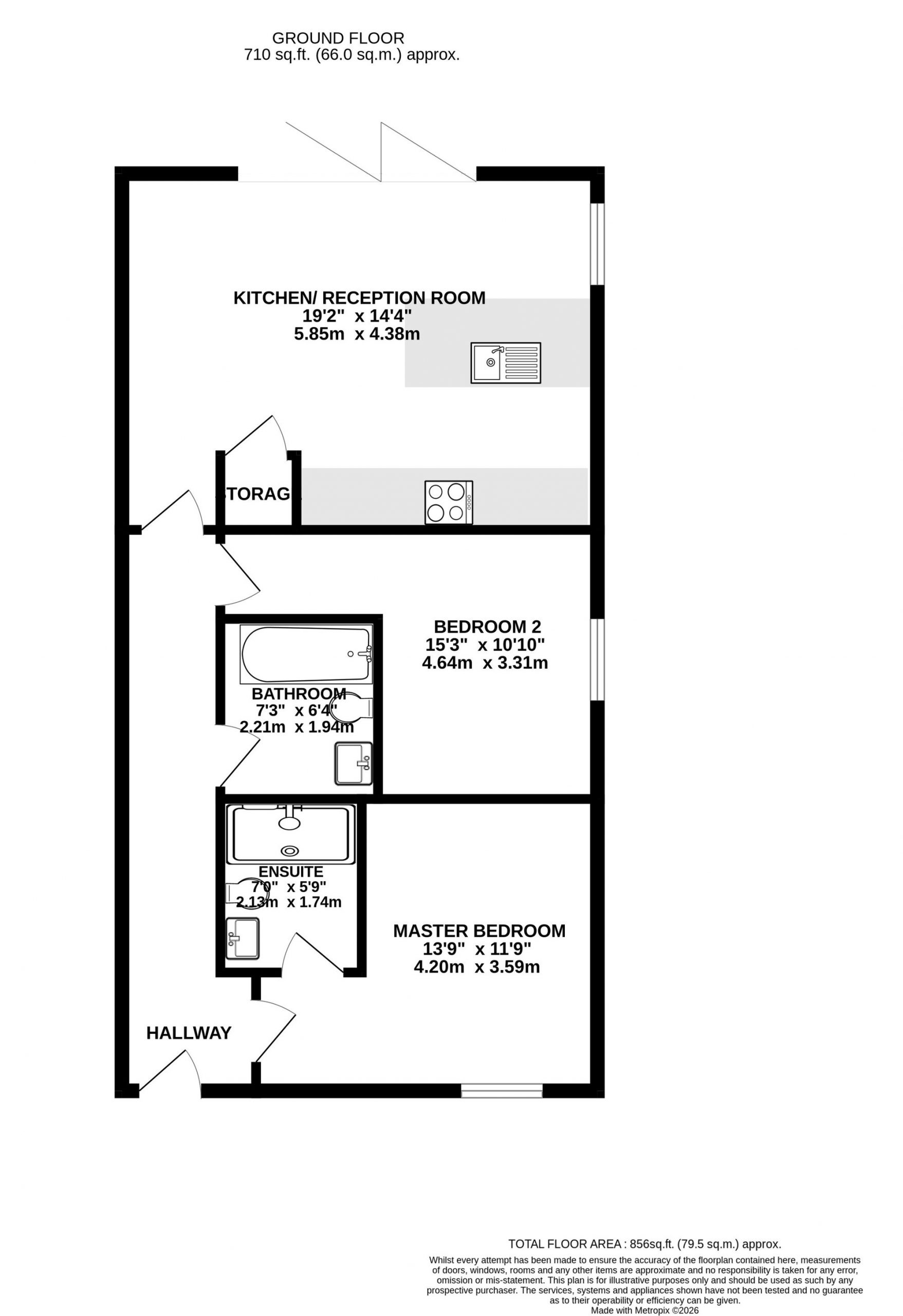
Christmas Farm is an exclusive new development featuring just four semi-detached bungalows, modern finishes, landscaped grounds, parking, EV charging and countryside views near Salfords station.

  • Bedroomstwo Bedrooms2
  • Bedroomsone Bathrooms1
  • Bedroomsone Receptions1

Christmas Farm, Picketts Lane, RH1

£575,000

Christmas Farm is an exclusive new development featuring just four semi-detached bungalows, modern finishes, landscaped grounds, parking, EV charging and countryside views near Salfords station.

Christmas Farm is an outstanding brand-new development that showcase four beautiful bungalows. Nestled along tranquil Picketts Lane and embraced by Greenery, offering panoramic views, this is countryside at its finest. 

The development comprises a mix of three bedroom and two bedroom homes, arranged as two pairs of semi-detached bungalows, each designed with a focus on modern living, energy efficiency and high-quality specification throughout.

Each property provides well-balanced, lateral accommodation with open and light-filled living spaces. The kitchens are fitted with contemporary white and walnut cabinetry, Tuscany white quartz worktops and a full range of integrated Bosch appliances, with breakfast bars creating an informal dining and social space. Bathrooms and en suites are finished with brushed nickel fittings and modern sanitaryware, delivering a clean and refined aesthetic.

All homes benefit from en suite facilities to the principal bedroom, together with additional bedrooms and a separate bathroom. Externally, the development is complemented by beautifully landscaped communal grounds, with each property enjoying two allocated parking spaces, visitor parking and EV charging provision.

Christmas Farm is conveniently positioned within easy reach of Salfords station, providing rail services to London and the south coast, and is located close to Gatwick Airport. The surrounding area offers a balance of countryside living with access to local amenities, road connections and nearby towns.

Tenure: Freehold
EPC rating: To be confirmed
Council Tax band: To be confirmed
Warranty: 10 year Buildzone warranty

Viewings are arranged by appointment. Our team will guide you clearly through the development, specification and purchase process, with active management and clear communication throughout.

Similar Property
£475,000 | For Sale
Guide Price £475,000 - £500,000. Attractive two-bed semi in quiet Sevenoaks cul-de-sac. Modern kitchen, garden with patio, outho...