Guide price £425,000-£450,000. Charming four-bed terraced home in Whyteleafe. Three floors, ensuite to main bedroom, garden, driveway, close to amenities, schools, and train links. Ideal for families.
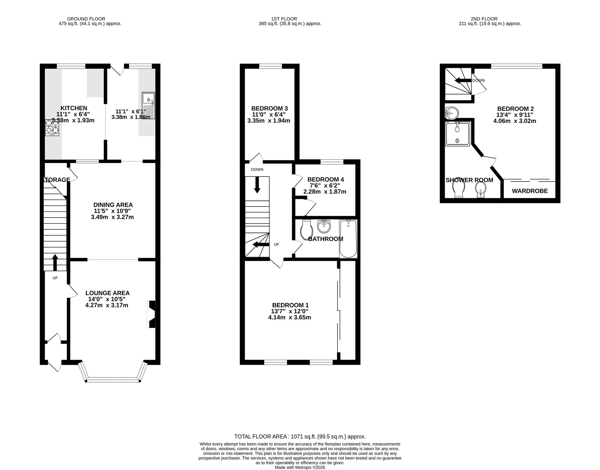
Guide Price £425,000 – £450,000. This charming four-bedroom terraced home is ideally located in the popular village of Whyteleafe, offering generous living space arranged over three floors and a wealth of character features throughout.
The property is approached via a front driveway and welcoming porch, leading into an entrance hall with practical space for coats and shoes. To the front, the through living/dining room provides an excellent space for both relaxing and entertaining, featuring a bay window, feature fireplace, and useful understairs storage.
The kitchen offers direct access to the rear garden, making it ideal for family living. The rear garden enjoys a patio area, perfect for outdoor dining, with the remainder laid to lawn.
On the first floor are three bedrooms and a family bathroom, with the main bedroom benefiting from a built-in wardrobe. The top floor is dedicated to a further bedroom suite, complete with built-in wardrobes and a private ensuite, providing an ideal principal bedroom or guest space.
Combining character, space, and a convenient location close to local amenities and transport links, this property makes an excellent family home.
Location –
The picturesque village of Whyteleafe, whose name comes from the distinctive white underside of the whitebeam trees growing in the area, is nestled within the gorgeous Surrey North Downs. Home to many beautiful parks and countryside, such as Riddlesdown Common with its beautiful woodlands. Whyteleafe offers many local amenities to its community- two pubs, a newsagent, a general store, two petrol stations (with M&S and Waitrose food outlets), a post office, hairdresser, chemist, and a couple of cafés. For a more extensive variety of restaurants and independent boutique shops, head to the nearby village of Warlingham. Commuters are drawn to Whyteleafe due to its close proximity to London, via its three train stations: Whyteleafe, Upper Warlingham and Whyteleafe South, all with connections to London Bridge and London Victoria in just 30 minutes. Young families also favour the village due to its great schools on their doorstep – Whyteleafe Primary and Secondary Schools, as well as a choice of great private schools in neighbouring Caterham.