Instant Valuation
Instant Valuation

Start your property search here

Under Offer
4 Bedroom
House

Guide Price £1,500,000

A beautiful four-bedroom detached home within exclusive development of energy-efficient, highly sustainable homes, forming a charming farmstead set within approximately 37 acres of communal grounds.

  • Bedroomsfour Bedrooms4
  • Bedroomsthree Bathrooms3
  • Bedroomsthree Receptions3

Hartfield Road, Cowden, TN8

Guide Price £1,500,000

A beautiful four-bedroom detached home within exclusive development of energy-efficient, highly sustainable homes, forming a charming farmstead set within approximately 37 acres of communal grounds.

Welcome to Hartdene Barns, where sustainability and super energy-efficient design seamlessly blend with luxury living.

This exclusive gated development, built to meet the rigorous RIBA Climate Challenge, comprises just nine architecturally designed, net zero homes. Set within nearly 37 acres of stunning Kent countryside designated as an Area of Outstanding Natural Beauty, the site offers spectacular panoramic views across rolling fields and woodlands. Each home has been thoughtfully crafted to not only harmonise beautifully with its natural surroundings but also to provide the very best in contemporary luxury, comfort, and sustainable living.

The homes are designed to integrate effortlessly with the landscape, boasting generous, light-filled living spaces with soaring vaulted ceilings. These spacious, luxurious homes combine elegance with cutting-edge environmental technology to deliver nearly zero running costs, setting a new standard for responsible and refined living.

 

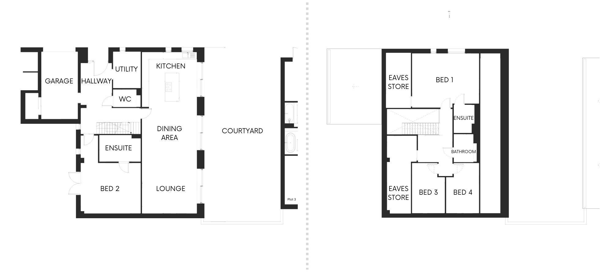
Barn 4 is an exceptional four-bedroom detached family home, designed to accommodate modern lifestyles with flexibility and style. Set within this unique gated community, the property offers a superb blend of indoor and outdoor living, enhanced by a private garage and generous parking facilities. This home comprises:

 

Hallway
Step into a welcoming entrance hallway that provides direct access to the integral garage, utility room, guest W.C., a versatile ground-floor bedroom, and the expansive open-plan living area. The flow is intuitive, balancing practical day-to-day living with elegant design.

 

Kitchen & Dining Space (dual aspect, 8.5m x 4.7m with feature height ceilings)
The heart of the home, this bespoke kitchen by Ornate Kitchens showcases sleek Caesarstone mineral work surfaces paired with premium VZUG integrated appliances. A central island offers the perfect spot for casual dining and entertaining, while two sliding doors open out onto a spacious courtyard, blurring the lines between indoor comfort and outdoor relaxation.

 

Lounge (5.5m x 4.7m with feature height ceilings)
A generous, light-filled lounge with sliding doors that lead directly to the rear garden. This elegant space is perfect for both intimate family moments and larger social gatherings, with the garden views enhancing the sense of tranquillity.

 

Downstairs W.C.
Conveniently placed for guests and daily use.

 

Utility Room
A practical, well-equipped room designed to keep household tasks organised and discreet.

 

Bedroom 2 (5.1m x 4.3m)
A spacious ground-floor bedroom offering direct access to the garden and an ensuite shower room. Ideal for guests, older family members, or those seeking one-level living without compromise.

 

Integral Tandem Garage (5.8m x 3.2m)
Featuring internal storage space, an electric up-and-over rolling door, and both hot and cold taps—perfect for vehicles, bikes, and extra storage needs.

 

First Floor

 

Master Bedroom (5.8m x 4.4m)
A peaceful and luxurious master suite boasting a beautifully appointed ensuite shower room—designed to be a private sanctuary at the end of the day.

 

Bedroom 3 (4.4m x 2.9m)
A versatile bedroom, suitable for family, guests, or a home office.

 

Bedroom 4 (4.4m x 2.9m)
Another well-proportioned bedroom, perfect for children or visitors.

 

Family Bathroom Suite
A stylish and modern bathroom designed with comfort and practicality in mind, serving the family bedrooms.

 

Outside

The property benefits from off-road parking located conveniently in front of the garage. The rear garden is a beautifully landscaped space, complete with a generous patio area ideal for alfresco dining and entertaining, a lawn perfect for play or relaxation, and a striking 15m x 6.6m courtyard adjoining the open-plan living space—perfect for soaking up the peaceful surroundings and enjoying outdoor living at its best.

Communal Features

Life at Hartdene Barns transcends the ordinary — it is an invitation to embrace an extraordinary rural lifestyle within a vibrant and exclusive community. Residents enjoy privileged access to 36.625 acres of stunning, pristine Kent countryside, where wildflower meadows bloom, expansive green spaces invite relaxation, and tranquil walking paths meander gracefully through the natural landscape.

Hartdene isn’t just a place to live. It’s a place to breathe.

Enhancing this unparalleled setting are the private luxury allotments, expertly managed by our esteemed partners at Roots Allotments — champions of sustainable, chemical-free organic growing. These thoughtfully maintained allotments are available to residents at no running cost until June 2027*, providing a seamless opportunity to cultivate fresh, seasonal produce and foster a deeper, more meaningful connection with the land and community.

* From The Sunday Times April 2025

“We wanted to create a clear distinction between gardens, designed for relaxation and entertainment, and allotments, which can provide a regular source of organic fruit and vegetables”, says Michael Wynne, the co-founder of Q New Homes. “Residents can choose to get involved as much or as little as they like, or simply receive produce tailored to their preference, delivered right to their door. The idea is that the allotments should be a joy to use, never a burden. They may even find that it helps to build relationships with neighbours and promote a more active lifestyle”.  

 https://www.thetimes.com/life-style/property-home/article/allotments-greenwashing-community-biodiversity-lfnw3wnd3

*Disclaimer – Photography in this marketing may be taken from another unit within the Hartdene Barns development. Information is intended as a guide only and must not be relied upon as a statement of fact. This does not form the basis of a contract of any part thereof. The descriptions, distances and other information are believed to be correct, but their accuracy is not guaranteed. Any intending purchaser must therefore satisfy themselves by inspection or otherwise as to their correctness. We reserve the right to alter the specification without notice and substitute materials, equipment or fittings for similar quality.

Similar Property
£1,600,000 | Sold STC
Beautifully renovated detached family home with gated parking, open-plan kitchen/living space, bi-folds to landscaped garden, four...