Instant Valuation
Instant Valuation

Start your property search here

For Sale
4 Bedroom
House

£700,000

Beautifully presented four-bedroom home arranged over three generous floors. Features open-plan living, high-end finishes throughout, and luxurious bathrooms. *Legal fees contribution available, STC*.

  • Bedroomsfour Bedrooms4
  • Bedroomstwo Bathrooms2
  • Bedroomstwo Receptions2

Hollymeoak Road, Coulsdon, CR5

£700,000

Beautifully presented four-bedroom home arranged over three generous floors. Features open-plan living, high-end finishes throughout, and luxurious bathrooms. *Legal fees contribution available, STC*.

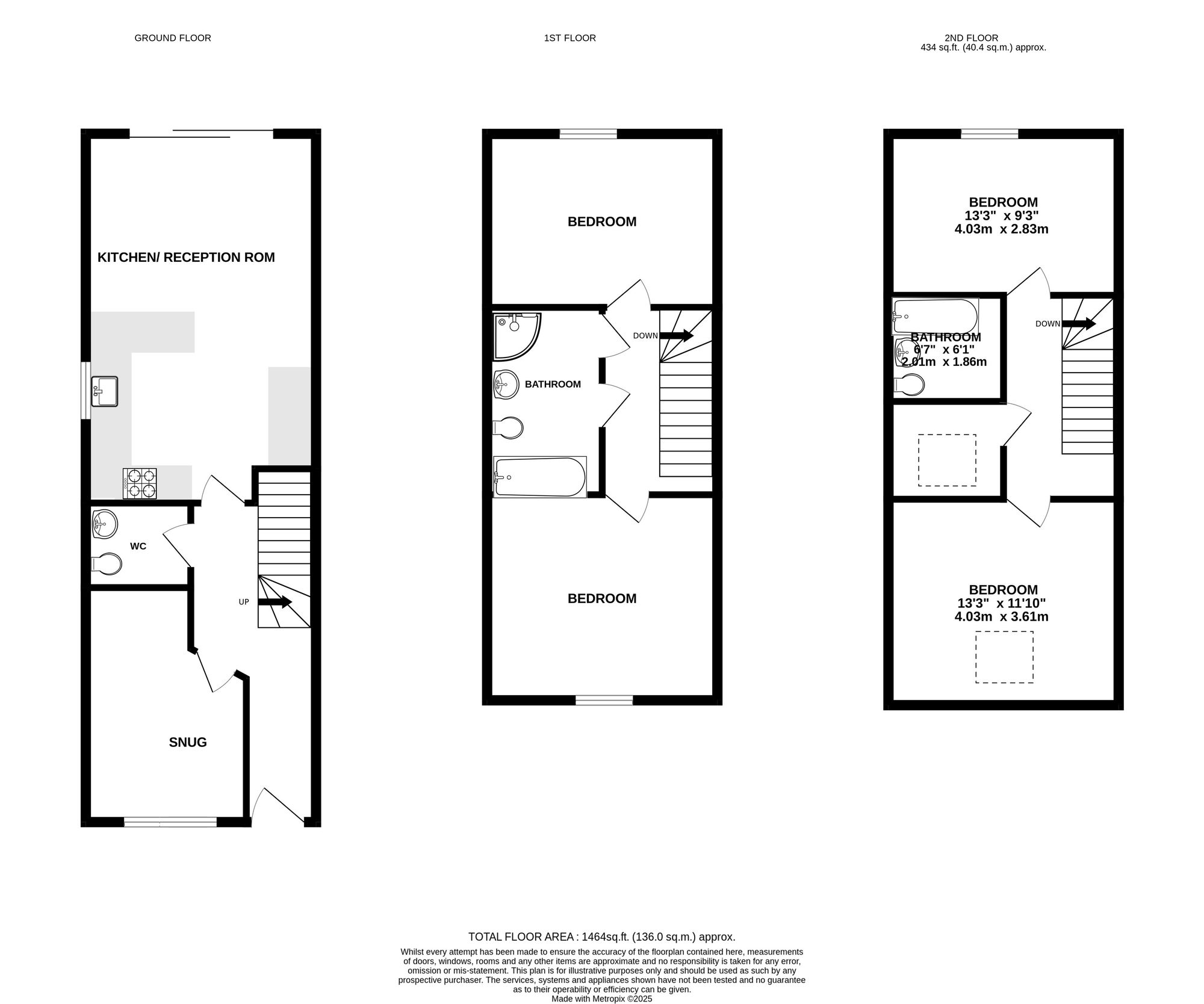
Welcome to Hollymeoak, where thoughtful design meets contemporary living. This exclusive new development by Carvall Homes comprises eight beautifully designed four-bedroom residences, each offering generous space, refined interiors, and elevated views over a peaceful, leafy setting on Hollymeoak Road.

Each home spans three spacious levels and has been crafted with meticulous attention to detail, featuring open-plan layouts, three stylish bathrooms, private rear gardens, and allocated parking. Interiors showcase engineered wood flooring, underfloor heating, and premium finishes throughout. Every home includes allocated parking and is equipped with EV charging, blending convenience with future-ready living.

At the heart of the home, the stunning open-plan kitchen/dining area is designed for both everyday living and entertaining. Featuring classic Shaker-style cabinetry in a soft linen tone, Treviso quartz worktops, integrated Neff appliances, and a boiling water tap, this kitchen is both elegant and practical. Bifold doors lead out to a low-maintenance composite decked garden which is ideal for alfresco dining in the warmer months.

The ground floor also includes a welcoming hallway and a front-facing living room with a relaxed yet refined ambiance, along with a convenient WC.

Upstairs, the first and second floors host four generously sized double bedrooms, some with bespoke fitted wardrobes. Plush carpeting and calming tones create a sense of retreat. Bathrooms are sleek and contemporary, fitted with Duravit sanitaryware, black accents, and Porcelanosa textured tiling. Each includes either a walk-in shower, separate bath, or both.

Perfectly positioned for commuters, Hollymeoak is a short walk from Brighton Road, providing easy access to both Coulsdon South and Redhill mainline stations.

Surrounded by green spaces, Hollymeoak offers the best of town and country living. Explore the ancient woodlands of Dollypers Hill, enjoy picnics in the iconic Mayfield Lavender Fields, or take in panoramic London skyline views from Farthing Downs , all just moments from your doorstep.

Key Information:

  • Tenure: Freehold

  • Service Charge: TBC

  • Council Tax: TBC

  • EPC: TBC

Disclaimer – Some Photography may be used in this marketing from a previous Carvall Homes development. This information is provided as a guide only and does not form part of any contract. All measurements, specifications, and distances are believed to be accurate but should be verified by prospective purchasers. We reserve the right to change specifications or substitute materials without notice.

Similar Property
£625,000 | For Sale
Spacious and modern 4-bed semi in Addiscombe offering open-plan living, two ensuite bedrooms, family bathroom, garden with decking...
Similar Property
£675,000 | For Sale
A stunning, brand-new, energy efficient four bedroom house, with luxurious bespoke kitchen and exceptional features throughout. Pr...