Instant Valuation
Instant Valuation

Start your property search here

For Sale
2 Bedroom
Flat

In Excess of £270,000

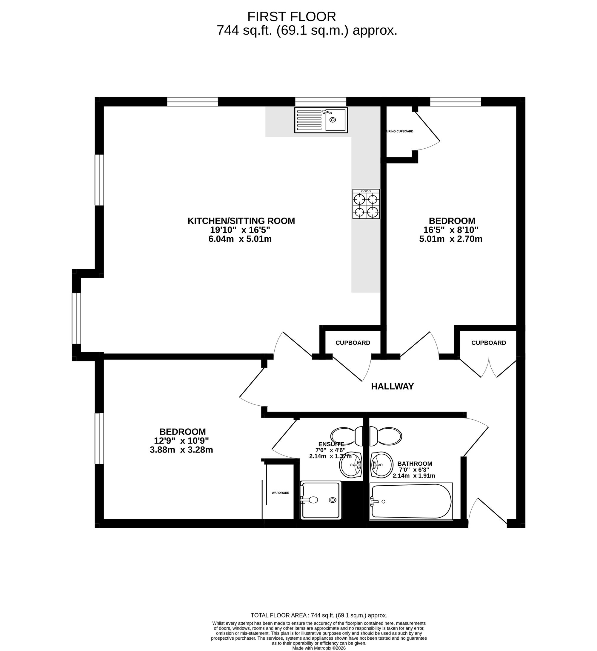
Offered with no onward chain is this immaculate 2-bed luxury apartment in Kilnwood Vale. High-spec finish, en-suite, family bathroom, 2 parking spaces, NHBC warranty.

  • Bedroomstwo Bedrooms2
  • Bedroomstwo Bathrooms2
  • Bedroomsone Receptions1

Illett Way, Faygate, RH12

In Excess of £270,000

Offered with no onward chain is this immaculate 2-bed luxury apartment in Kilnwood Vale. High-spec finish, en-suite, family bathroom, 2 parking spaces, NHBC warranty.

This immaculately presented two bedroom luxury apartment is situated in an exclusive block of 9 homes, crafted by renowned developer Linden Homes, offers an exceptional standard of modern living within the sought-after Kilnwood Vale development. Finished to a high specification throughout, the property features a bright and spacious open plan lounge and kitchen, perfectly designed for both relaxation and entertaining. The kitchen is equipped with a full range of built-in, high end appliances, complemented by sleek cabinetry and contemporary worktops, ensuring both style and practicality. Both bedrooms are generously sized doubles, with the master benefitting from a built-in wardrobe that provides ample storage while maintaining the clean, uncluttered aesthetic of the interior. The principal bedroom further impresses with a beautifully appointed en-suite shower room, featuring premium fixtures and tasteful tiling. A stunning family bathroom, finished to an equally high standard, serves the second bedroom and guests, offering a luxurious space to unwind.

The apartment is presented in pristine condition, reflecting careful ownership and attention to detail, and is further enhanced by the peace of mind provided by the remaining five years of the NHBC builder’s warranty. Additional benefits include 2 allocated parking spaces and ample visitor bays, ensuring convenience and security for residents. With its combination of generous proportions, quality finishes and a prime location within Kilnwood Vale, this property represents a superb opportunity for discerning buyers seeking contemporary comfort and style. The property is offered to the market with no onward chain, ensuring a smooth and straight forward transaction.

Similar Property
£300,000 | Sold STC
Guide price £300,000 - £325,000. Two double bed maisonette in charming location. Modern design, open-plan living, Juliet balcony...
Similar Property
£280,000 | Sold STC
Spacious 2-Bedroom, 2-Bathroom Flat with Garage – Prime Whyteleafe Location