Instant Valuation
Instant Valuation

Start your property search here

Sold STC
3 Bedroom
House

£500,000

A modern, three-bedroom family home offered to the market in a quiet cul-de-sac location close to local shops and transport links.

  • Bedroomsthree Bedrooms3
  • Bedroomsone Bathrooms1
  • Bedroomsone Receptions1

Kerr Close, South Croydon, CR2

£500,000

A modern, three-bedroom family home offered to the market in a quiet cul-de-sac location close to local shops and transport links.

OVERVIEW

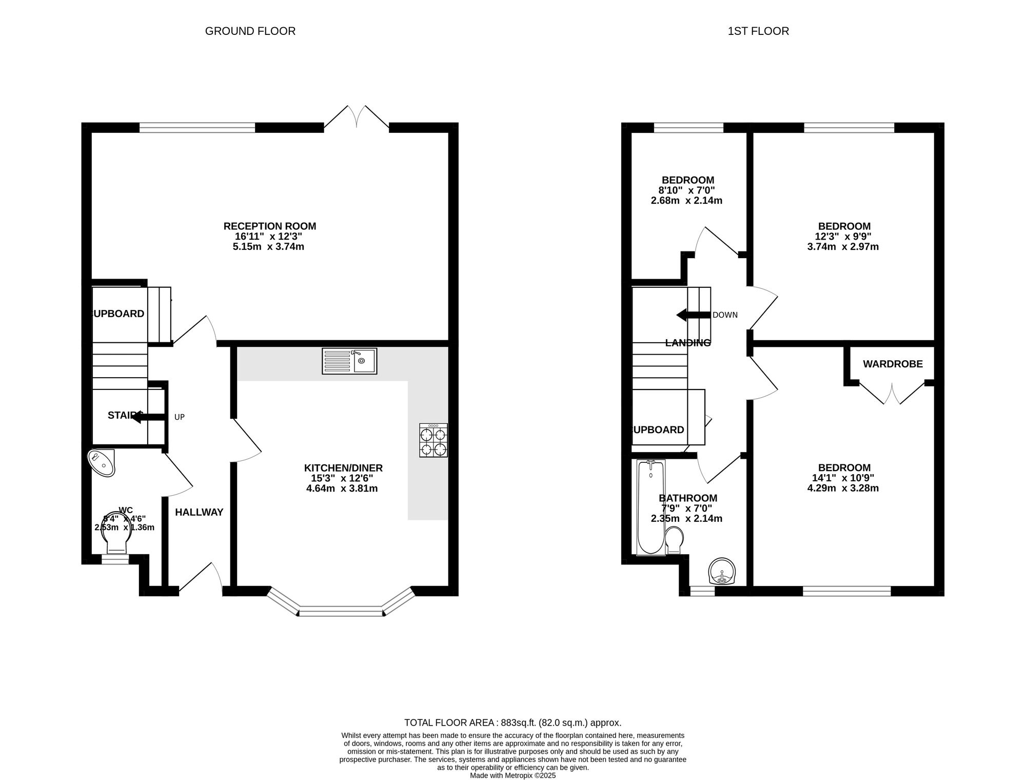
This modern family home is offered to the market in excellent condition throughout. The accommodation briefly comprises, entrance hall with downstairs W.C, kitchen/breakfast room with fitted appliances and a living/dining benefitting from patio doors leading to the private rear garden. The reception room is spacious and ideal for entertaining guests. The property is finished to a high standard throughout with Amtico flooring, fully tiled bathroom and contemporary features.

Upstairs, there are three well proportioned bedrooms and a separate family bathroom. Ideal for a growing family and those who work from home.

Outside, the property benefits from an allocated parking space. The back garden has a patio area for al-fresco whilst the rest is laid to lawn. The garden has both side and rear space and features side access.

LOCATION

Kerr Close is a popular residential cul-de-sac situated conveniently close to many local shops, transport links and amenities.

The property is just a short walk (approx. 6 minutes) from Gravel Hill Tram Stop, the property offers effortless connections to East Croydon, London Bridge, Victoria, and Gatwick Airport. There are also a number of local bus routes nearby.

With close proximity is Addington Park, Spring Park and Addington Hills; the property is in the ideal spot for dog-walking and leisurely afternoon strolls.

For fitness, there recently refurbished sports centre is only an 11-minute walk away, perfect for health enthusiasts or family activities.

This property is a rare opportunity to combine suburban serenity with city accessibility. Its enviable location near both green spaces and key transport hubs makes it an excellent choice for anyone seeking the perfect balance of lifestyle and convenience.

Tenure: Freehold

Council Tax: E

EPC: C

Estate Charge: £350 per annum

Similar Property
£600,000 | For Sale
*Homes from £600,000 Guide Price *A beautifully crafted new-build semi-detached home featuring stylish interiors, three spacious ...
Similar Property
£475,000 | For Sale
A stunning, ground-floor three-bedroom apartment,combining spacious, beautiful, open-plan living with a private terrace. Discover ...