Instant Valuation
Instant Valuation

Start your property search here

For Sale
3 Bedroom
House

Offers Over £575,000

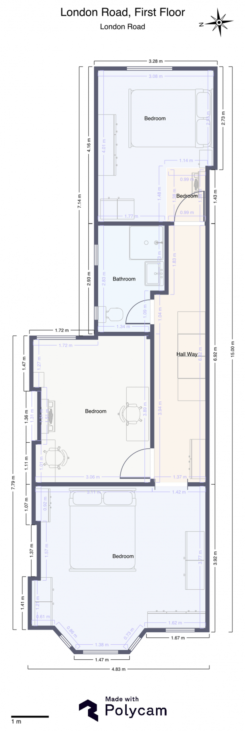
Immaculate Victorian semi with period charm that has been improved throughout by the current owners. The property is well positioned for access to Redhill Town Centre and Train Station.

  • Bedroomsthree Bedrooms3
  • Bedroomsone Bathrooms1
  • Bedroomsthree Receptions3

London Road, Redhill, RH1

Offers Over £575,000

Immaculate Victorian semi with period charm that has been improved throughout by the current owners. The property is well positioned for access to Redhill Town Centre and Train Station.

This beautifully presented Victorian semi detached home offers a superb blend of period charm and modern convenience, making it an ideal choice for families and professionals alike. Upon entering, you are greeted by a welcoming hallway that leads to a stunning living room, featuring elegant proportions, high ceilings and attractive period detailing. The separate dining room provides a versatile space for formal entertaining or relaxed family meals, while the spacious kitchen/breakfast room has ample storage and workspace, perfect for those who enjoy cooking or gathering with loved ones. Upstairs, the property boasts three generously sized double bedrooms, each filled with natural light and offering plenty of room for wardrobes and additional furnishings. The refitted family bathroom is finished to a high standard, with contemporary fittings and stylish tiling, ensuring comfort and practicality for every-day living. Additional features include a private driveway, providing off street parking for two cars, gas central heating and double glazing throughout (ensuring comfort and efficiency all year round). The property’s layout is both functional and flexible, catering to the needs of modern living while retaining the character and warmth typical of the Victorian era. The property is located within a short walk of Redhill Town Centre, local schools and Redhill train station, offering a fast and efficient line into Central London. Immaculately maintained and ready to move into, this Victorian semi detached residence represents a rare opportunity to acquire a substantial and stylish home in a desirable location. Early viewing is highly recommended to fully appreciate the quality and space on offer.

Similar Property
£525,000 | Sold STC
Three bedroom semi-detached home in a private cul-de-sac, benefitting driveway parking, master bedroom with ensuite and spacious l...
Similar Property
£600,000 | For Sale
Exquisite three-bedroom freehold home in exclusive Purley enclave. Open-plan living, luxury finishes, private garden, parking with...