Instant Valuation
Instant Valuation

Start your property search here

For Sale
4 Bedroom
House

Guide Price £800,000

Impressive four bed end terrace in secure gated Redhill development. Spacious, modern, three floors, landscaped garden, parking, high ceilings, excellent schools, and commuter links.

  • Bedroomsfour Bedrooms4
  • Bedroomstwo Bathrooms2
  • Bedroomsone Receptions1

London Road, Redhill, RH1

Guide Price £800,000

Impressive four bed end terrace in secure gated Redhill development. Spacious, modern, three floors, landscaped garden, parking, high ceilings, excellent schools, and commuter links.

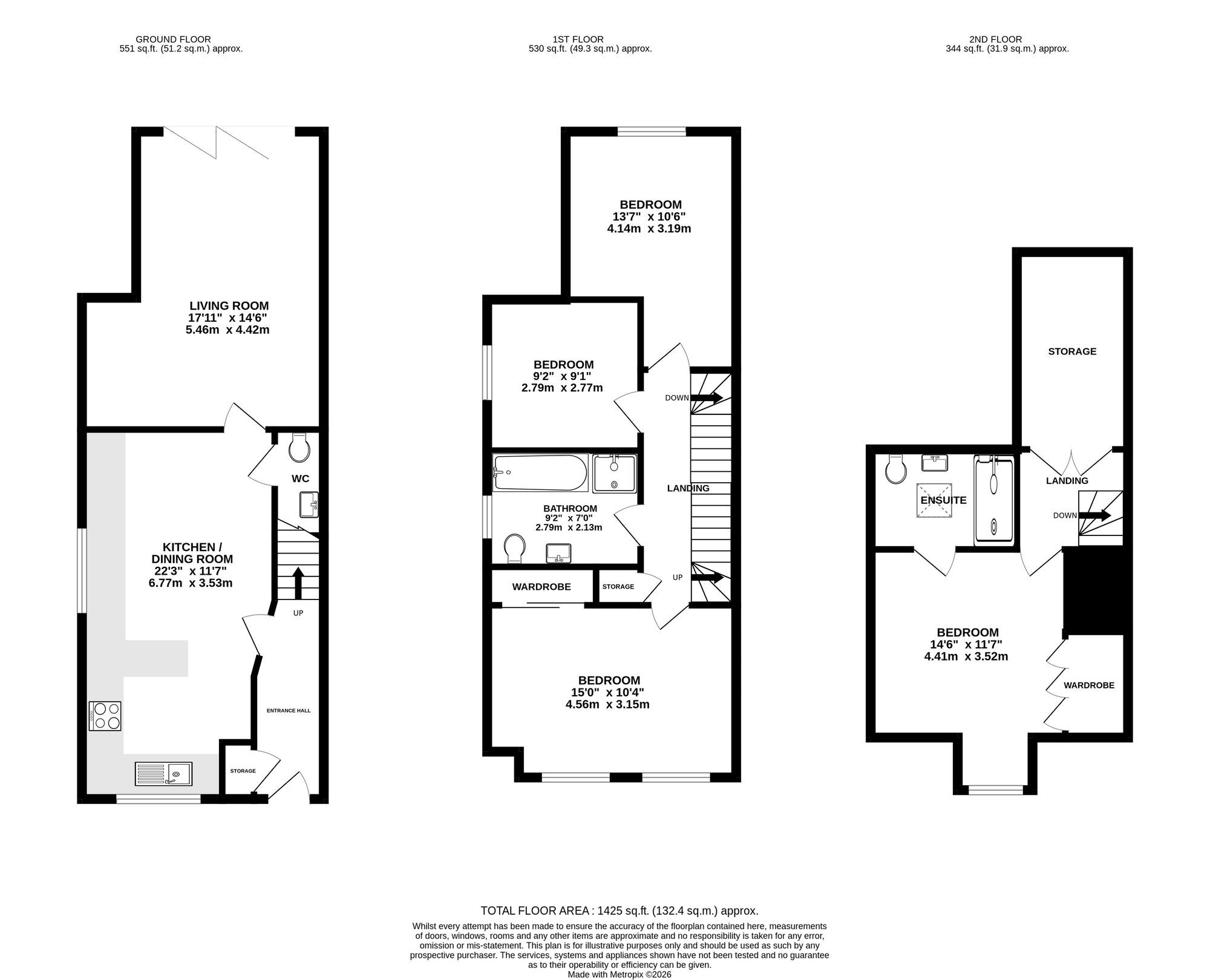
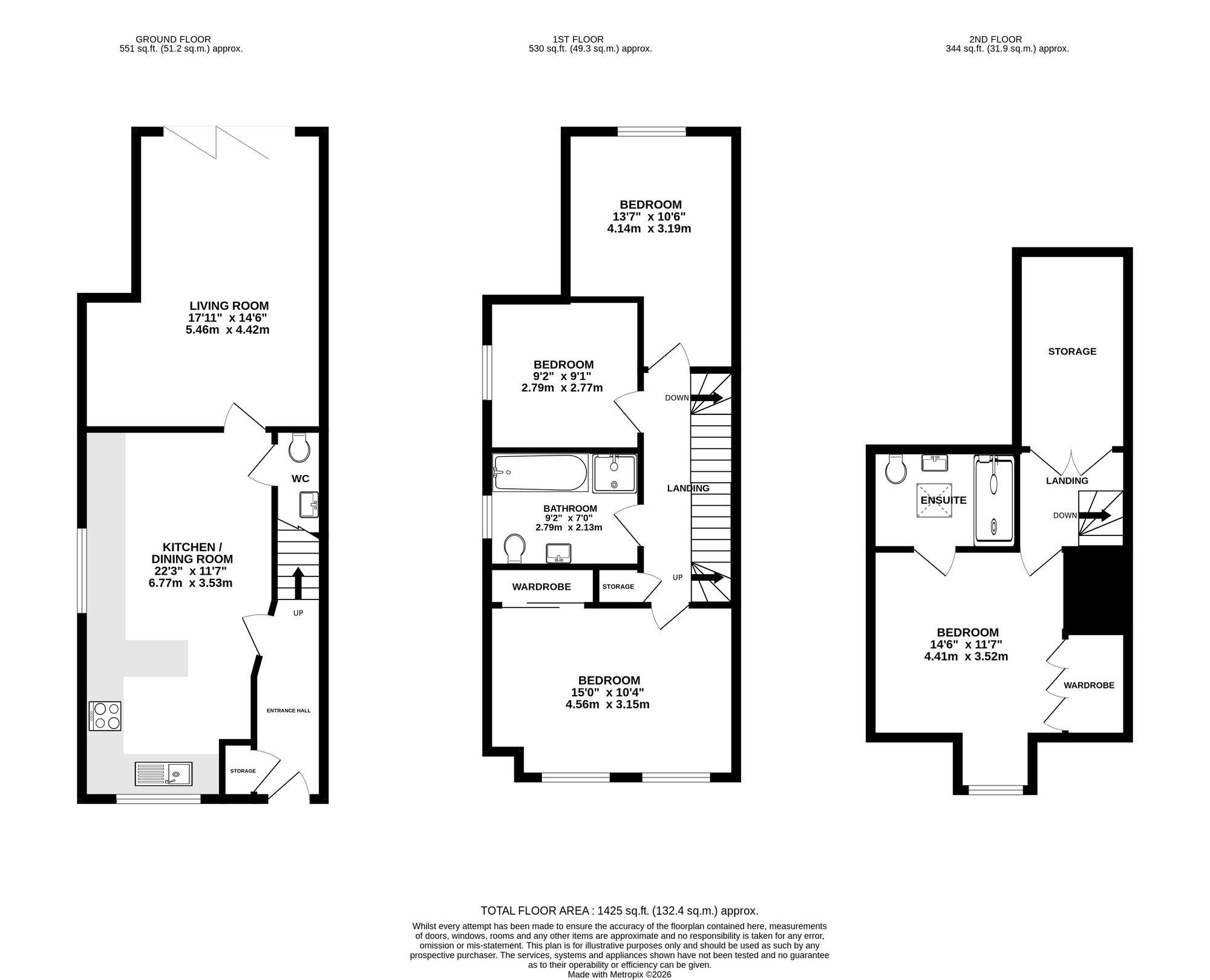
Situated within a secure gated development of only three houses on London Road, Redhill, this impressive end of terrace four double bedroom home offers spacious and versatile accommodation arranged over three floors, complemented by high ceilings and excellent natural light throughout.

The property is entered via a welcoming entrance hall, providing ample space for coats and shoes, along with a useful storage cupboard. To the rear of the home is a stunning open plan kitchen and dining room, finished with a stylish shaker-style kitchen, quartz worktops, and a combination of built-in and freestanding appliances including American french style fridge/freezer and Samsung 9 KG tumble dryer. A recently installed water filter system adds further practicality, while a convenient ground floor w/c is located just off the kitchen/dining area.

The separate family living room is a generous and flexible space, ideal for a variety of uses thanks to its well-considered layout. This room benefits from bi-fold doors opening directly onto the garden patio, creating a seamless connection between indoor and outdoor living.

The first floor hosts three well-proportioned double bedrooms, along with a modern family bathroom. The top floor is dedicated to the impressive master suite, featuring built-in wardrobes, a private en-suite shower room, and a large amount of eaves storage, offering excellent additional space.

Externally, the property continues to impress with a large front garden, side access, and a rear garden that has been further landscaped, complete with a newly installed shed at the back. The development benefits from allocated parking for two cars including an electric charging unit, as well as two two further shared guest spaces and secure gated access.

Further benefits include high ceilings throughout, enhancing the sense of space and light, and the reassurance of being under a New Build Warranty with Buildzone.

This exceptional home combines modern living, generous accommodation, and a convenient Redhill location, making it an ideal choice for families and professionals alike.

Location –

Redhill has experienced a surge in popularity in recent years, thanks to its convenient location and excellent commuter connections to Central London, offering regular 30-minute services to the city. This town caters to a diverse range of interests and preferences. The Memorial Park serves as a serene oasis in the heart of Redhill, featuring a charming orchard, vibrant sensory garden, and a playground for children. For shopping enthusiasts, the Belfry Mall and Redhill’s retail district house a variety of well-known high street stores like H&M, Superdrug and Waterstones. The Light is a key attraction in Redhill housing a variety of fun activities including climbing walls, bowling lanes,  Shuffleboard, Axe Throwing lanes, Street Curling and Mini Golf course, plus 6 cinema screens, and a Kitchen and Bar Menu

 

Redhill boasts a vibrant culinary scene with a plethora of cafes and restaurants. Locals enjoy lunch at Deli on The Hill on Linkfield Road or gather with friends for a leisurely Sunday roast at Home Cottage. Nature enthusiasts will appreciate Redhill’s proximity to the picturesque Surrey countryside, parks, and expansive green spaces. Those inclined towards water sports can partake in various activities and clubs at Mercers Park throughout the year. Families are drawn to Redhill for its excellent local schools, including Lime Tree Primary School, Wray Common Primary School, St Bede’s Secondary School, and Royal Alexandra and Albert School.

Similar Property
£850,000 | For Sale
Guide Price £850,000 - £900,000. Four bedroom detached family home in Caterham on the Hill, offering spacious living accommodati...
Similar Property
£700,000 | Sold STC
Stunning four double bedroom detached home in Oakgrove Development. Modern kitchen, spacious lounge, driveway and garage. Convenie...