Instant Valuation
Instant Valuation

Start your property search here

For Sale
4 Bedroom
House

Offers Over £600,000

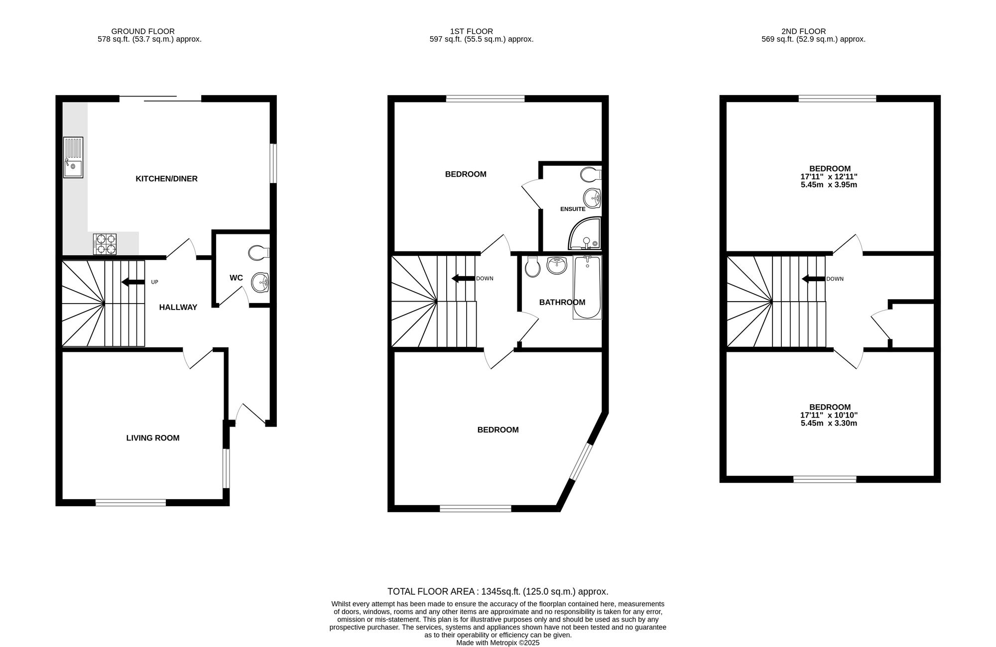
An impressive new four-bedroom end of terrace home featuring a bespoke luxury kitchen, premium finishes, energy-efficient design, and the benefit of a private landscaped garden with parking.

  • Bedroomsfour Bedrooms4
  • Bedroomstwo Bathrooms2
  • Bedroomstwo Receptions2

North Down, South Croydon, CR2

Offers Over £600,000

An impressive new four-bedroom end of terrace home featuring a bespoke luxury kitchen, premium finishes, energy-efficient design, and the benefit of a private landscaped garden with parking.

Introducing an exclusive new development on Purley Downs Road, featuring seven contemporary three and four-bedroom homes, each with a private rear garden and allocated residents’ parking. Ideally situated at the junction of Purley Downs Road and North Down, this sought-after location benefits from excellent commuter links, with Riddlesdown, Sanderstead, and Purley Oaks stations all within easy reach. The surrounding area is rich in green spaces, including Sanderstead Recreation Ground, Riddlesdown Common, and Purley Beeches, perfect for outdoor leisure and family activities.

Designed with modern living in mind, each home boasts open-plan layouts, underfloor heating, and high-spec interiors. The welcoming entrance hallway leads through to a stunning open-plan kitchen and dining area at the rear of the home, naturally illuminated by large sliding doors opening onto a private landscaped garden, ideal for seamless indoor-outdoor entertaining.

The homes feature luxury German handleless kitchens with brushed chrome fittings and marble-white Quartz worktops. Integrated AEG appliances include an oven, hob, combination oven, fridge/freezer, dishwasher, and washing machine, while a downstairs WC adds practical convenience. A separate front living room offers a comfortable retreat for relaxing.

Upstairs, three beautifully finished bedrooms feature plush carpets and neutral décor, complemented by a family bathroom and en-suite designed with a spa-like feel, including Porcelanosa tiles, Duravit sanitaryware, rainfall showers, deep bathtubs, heated towel rails, and high-quality chrome fittings throughout.

Built by Excel Construction, a trusted local developer, these homes reflect exceptional craftsmanship and attention to detail, combining style, practicality, and lasting quality.

Tenure: Freehold
Service Charge: TBC
Council Tax: TBC
EPC: TBC

The development is set in the vibrant South Croydon area, offering an array of cafés, restaurants, and leisure amenities. Central Croydon is close by, providing extensive shopping, entertainment, and nightlife. For family fun, nearby Purley offers swimming, cinema, and bowling, while nature enthusiasts can explore Croham Hurst Woods, Bramley Bank Park, Addington Hills, and Selsdon Wood, ideal for scenic walks and peaceful escapes from the city.

Similar Property
£720,000 | For Sale
Beautifully presented four-bedroom home arranged over three floors, open-plan living, luxurious bathrooms, and high-quality finish...
Similar Property
£700,000 | For Sale
Four 4 bedroom new build homes in a gated East Croydon development. Dual aspect open-plan living, Bosch kitchen, underfloor heatin...