Instant Valuation
Instant Valuation

Start your property search here

Sold STC
2 Bedroom
Flat

In Excess of £325,000

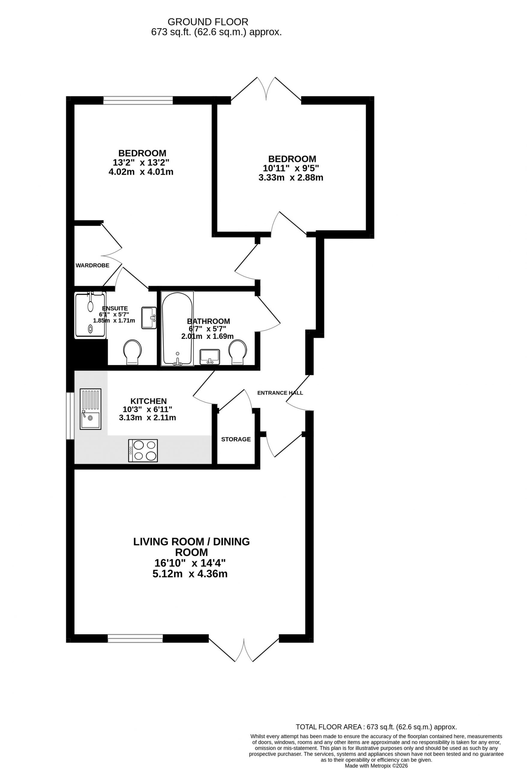
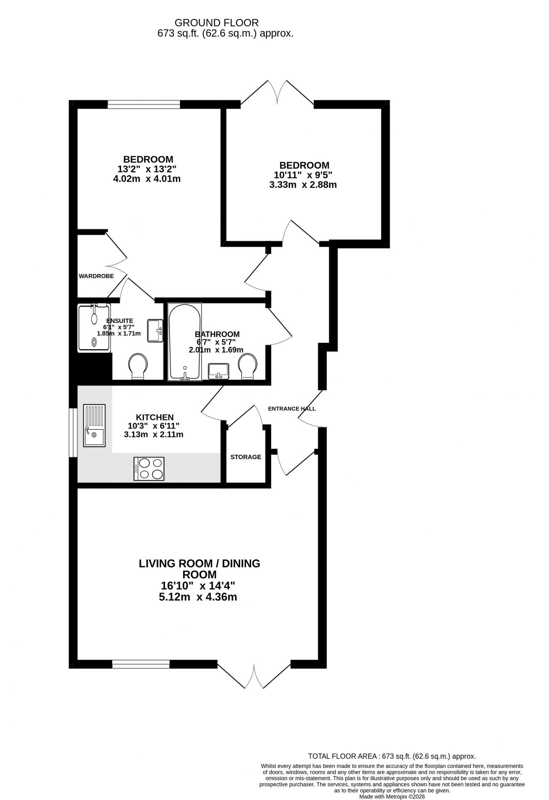
Well presented 2 bed ground floor apartment in Roundburrow Close, Warlingham. Features open plan living, en-suite, modern bathroom, separate kitchen, built-in storage, and grounds access.

  • Bedroomstwo Bedrooms2
  • Bedroomstwo Bathrooms2
  • Bedroomsone Receptions1

Roundburrow Close, Warlingham, CR6

In Excess of £325,000

Well presented 2 bed ground floor apartment in Roundburrow Close, Warlingham. Features open plan living, en-suite, modern bathroom, separate kitchen, built-in storage, and grounds access.

This well presented two bedroom ground floor apartment is ideally situated in the sought after residential development of Roundburrow Close in Warlingham, offering comfortable and convenient living.

The property welcomes you with a spacious entrance hall, complete with useful built in storage. The heart of the home is the generous open plan living and dining room, providing an excellent space for relaxing and entertaining. French doors open directly onto the grounds, allowing plenty of natural light and easy access to the outdoor space.

A separate kitchen offers practical cooking space with room for appliances and storage.

There are two well proportioned bedrooms, including a master bedroom that benefits from built in wardrobes and its own en-suite shower room. The second bedroom is served by a modern family bathroom located off the hallway.

The apartment enjoys a ground floor position within this popular development and would make an ideal purchase for first time buyers, downsizers, or investors alike.

Tenure: Leasehold

Remaining Lease: 984 Years

Service Charge: £ 2,765 PA

Ground Rent: £225.00 PA

Council Tax: D

LOCATION

The charming and historic village of Warlingham is situated on the southeastern edge of London. It is a highly sought-after residential area in the Surrey Downs, nestled amidst the scenic North Downs with its chalk hills and picturesque countryside. Warlingham has convenient transport connections to Central London through Whyteleafe and Upper Warlingham train stations, as well as easy access to the M25 just a short 5-mile drive away. This quintessential English village is centred around a delightful village green and offers a range of shops, amenities, and dining options. For a relaxing break, you can visit 412 for a cup of coffee and a pastry or enjoy a traditional Sunday roast at Botley Hill Farmhouse. Families are attracted to the area because of the excellent selection of schools, both private and state, and a wide array of recreational activities and sports clubs available for all to enjoy.

Similar Property
£285,000 | For Sale
A stunning first floor conversion apartment is situated just a short walk from Wallington train station. This two bedroom property...
Similar Property
£350,000 | For Sale
Two bedroom mid terrace on Milton Road, Croydon. Lounge with fireplace, kitchen/diner, downstairs bathroom, two double bedrooms an...