Instant Valuation
Instant Valuation

Start your property search here

For Sale
2 Bedroom
Flat

Offers Over £400,000

THE DOORS ARE OPEN! Come and discover this refined retreat in Prime Location - Coulsdon. Beautifully finished two-bedroom apartment offers a fresh and welcoming space to call home. Offered Share of Freehold and available to view today!

  • Bedroomstwo Bedrooms2
  • Bedroomsone Bathrooms1
  • Bedroomsone Receptions1

The Grove, Coulsdon, CR5

Offers Over £400,000

THE DOORS ARE OPEN! Come and discover this refined retreat in Prime Location – Coulsdon. Beautifully finished two-bedroom apartment offers a fresh and welcoming space to call home. Offered Share of Freehold and available to view today!

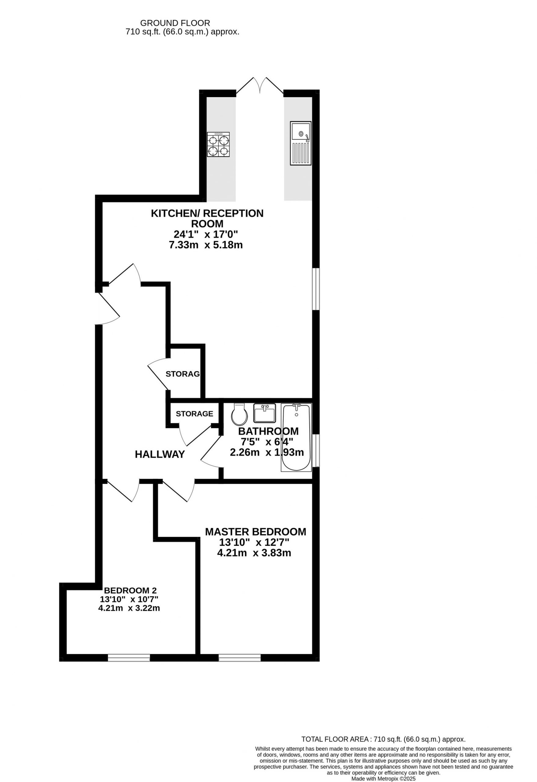
Tucked away in a highly desirable setting, this beautifully finished two-bedroom apartment offers a fresh and welcoming space to call home. Designed with a harmonious blend of contemporary style and everyday comfort, it presents an exceptional opportunity for modern living in a peaceful, well-connected location.

Step inside to a spacious, light-filled living area that flows seamlessly into a sleek, contemporary kitchen. Complete with quartz worktops, elegant cabinetry, and durable porcelain tiled flooring, the kitchen is as functional as it is stylish—perfect for both relaxed dining and entertaining.

Both double bedrooms are generously proportioned, each offering a calm and restful retreat. The master bedroom enjoys the added benefit of a private en-suite, while the main bathroom features both a bath and a separate shower enclosure. Finished in a crisp contemporary white, both bathrooms are thoughtfully appointed with high-quality chrome fixtures, vanity units with storage, wall-mounted mirrors with integrated lighting, and durable, easy-maintenance surfaces.

Throughout the apartment, quality laminate flooring complements a soft, neutral colour palette, while white-painted walls and smooth ceilings create a clean, modern aesthetic. Porcelain tiles continue into the kitchens and bathrooms, maintaining a sleek and cohesive finish throughout. Energy-efficient LED lighting is installed across the home, providing long-lasting, ambient illumination.

A large private balcony offers a wonderful extension of the living space perfect for enjoying morning coffee, evening relaxation, or even al fresco dining. It’s a feature that adds both versatility and charm to everyday living.

Residents also benefit from exclusive access to a secluded communal garden at the rear of the development, offering a peaceful green space to relax and recharge.

Other practical advantages include the option for an allocated underground parking space and a secure communal storage area ideal for bicycles, prams, or household items.

Combining thoughtful design, high-quality finishes, and a tranquil yet well-connected setting, this exceptional apartment at 25 The Grove offers a lifestyle of comfort, convenience, and understated sophistication. A truly special place to call home.

Location
Coulsdon, Surrey, offers the perfect balance of suburban charm and natural beauty, making it a sought-after location for families and commuters alike. Surrounded by green spaces such as Farthing Downs and Coulsdon Common, it’s ideal for outdoor walks and weekend escapes into nature.

The town itself has a welcoming community feel and a vibrant high street, home to a great selection of independent shops, cafés, and restaurants. Local favourites include The Aycorn Shoppe, a stylish café and wine bar with a passion for interiors and houseplants, and La Scarpetta, a well-loved Italian restaurant serving authentic dishes in a cosy setting. For sushi lovers, Kiku offers a delicious Japanese menu right in the heart of town. You’ll also find high-street essentials like Waitrose, Aldi, and Boots, all within easy reach.

Coulsdon is exceptionally well-connected, with Coulsdon South and Coulsdon Town train stations offering fast, direct links to London Bridge and London Victoria, making daily commuting seamless.

Nearby, there are a number of ‘Outstanding’ schools including Beaumont Primary, Woodcote Primary and Riddlesdown Collegiate for secondary.

Share of Freehold

Council Tax: TBD

EPC: TDB

 

*Disclaimer – Photography in this marketing may be taken from various units within The Grove Development. Information is intended as a guide only and must not be relied upon as a statement of fact. This does not form the basis of a contract of any part thereof. The descriptions, distances and other information are believed to be correct, but their accuracy is not guaranteed. Any intending purchaser must therefore satisfy themselves by inspection or otherwise as to their correctness. We reserve the right to alter the specification without notice and substitute materials, equipment or fittings for similar quality.

Similar Property
£375,000 | Sold STC
Charming two-bed mid-terrace on quiet Redhill cul-de-sac. Two receptions, stylish kitchen, modern bathroom, garden, walk to statio...
Similar Property
£325,000 | For Sale
Beautifully presented two-bed ground floor maisonette with modern kitchen, spacious living area, large private garden, outbuilding...