Instant Valuation
Instant Valuation

Start your property search here

For Sale
5 Bedroom
House

Guide Price £600,000

Beautiful five-bedroom end-terrace townhouse in Water Colours, set over three floors with garden, garage. Close to schools, station, amenities. Chain free. Guide £600k-£625k. Chain Free Sale

  • Bedroomsfive Bedrooms5
  • Bedroomstwo Bathrooms2
  • Bedroomsone Receptions1

The Moors, Redhill, RH1

Guide Price £600,000

Beautiful five-bedroom end-terrace townhouse in Water Colours, set over three floors with garden, garage. Close to schools, station, amenities. Chain free. Guide £600k-£625k. Chain Free Sale

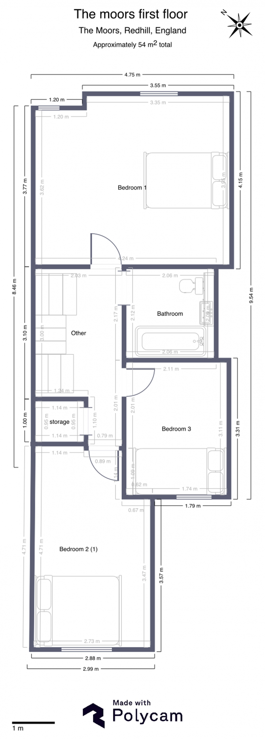
Guide Price £600,000 – £625,000. Chain Free Sale! Set within the highly sought-after Water Colours development on the riviera, this beautifully presented five-bedroom end-of-terrace townhouse offers spacious and versatile accommodation arranged over three floors, making it an ideal family home.

The ground floor welcomes you with an inviting entrance hall, complete with a useful under-stairs cupboard providing ample space for coats and shoes. To the front of the property, the bright and modern kitchen features a breakfast area and French doors opening out, allowing for plenty of natural light. To the rear, the generous open-plan living and dining room provides an excellent space for both relaxing and entertaining, with French doors leading directly onto the garden.

The first floor comprises three well-proportioned bedrooms, including a single room, alongside a contemporary family bathroom. The top floor hosts two spacious double bedrooms, including an impressive principal bedroom benefiting from its own en-suite shower room.

Externally, the property boasts a stylish, low-maintenance rear garden, thoughtfully designed with decking and a slate stone centrepiece. There is also convenient rear access leading directly to the garage en-bloc and allocated parking.

Further benefits include a downstairs w/c, being sold chain free, and a prime location within walking distance of local amenities and Lime Tree Primary School.

Location

The popular Watercolour development is renowned for its beautiful scenery, stunning lakes and great local countryside walks. Merstham provides excellent travel links with the station just a short walk away and trains to both Victoria and direct to London Bridge, as well as easy access to both the M25, M23 and Gatwick airport. There are also numerous schools nearby some of which rated outstanding. The property is also in the catchment area for the Royal Alexandra, Albert school and the new Lime Tree Primary School. There are some lovely independent shops and cafes, as well as providing a Tesco local store, gp and a nursery.

Similar Property
£575,000 | Sold STC
Guide price of £575,000 - £600,000. Beautiful Five Bedroom End of Terrace Home in the Popular Watercolour Development