Instant Valuation
Instant Valuation

Start your property search here

For Sale
2 Bedroom
Apartment

In Excess of £230,000

Guide Price £240,000 – £250,000. Modern top-floor 2-bed apartment in Caterham with balcony, updated kitchen and bathroom, gated parking, ample storage. Ideal for first-time buyers or investors.

  • Bedroomstwo Bedrooms2
  • Bedroomsone Bathrooms1
  • Bedroomsone Receptions1

Croydon Road, Caterham, CR3

In Excess of £230,000

Guide Price £240,000 – £250,000. Modern top-floor 2-bed apartment in Caterham with balcony, updated kitchen and bathroom, gated parking, ample storage. Ideal for first-time buyers or investors.

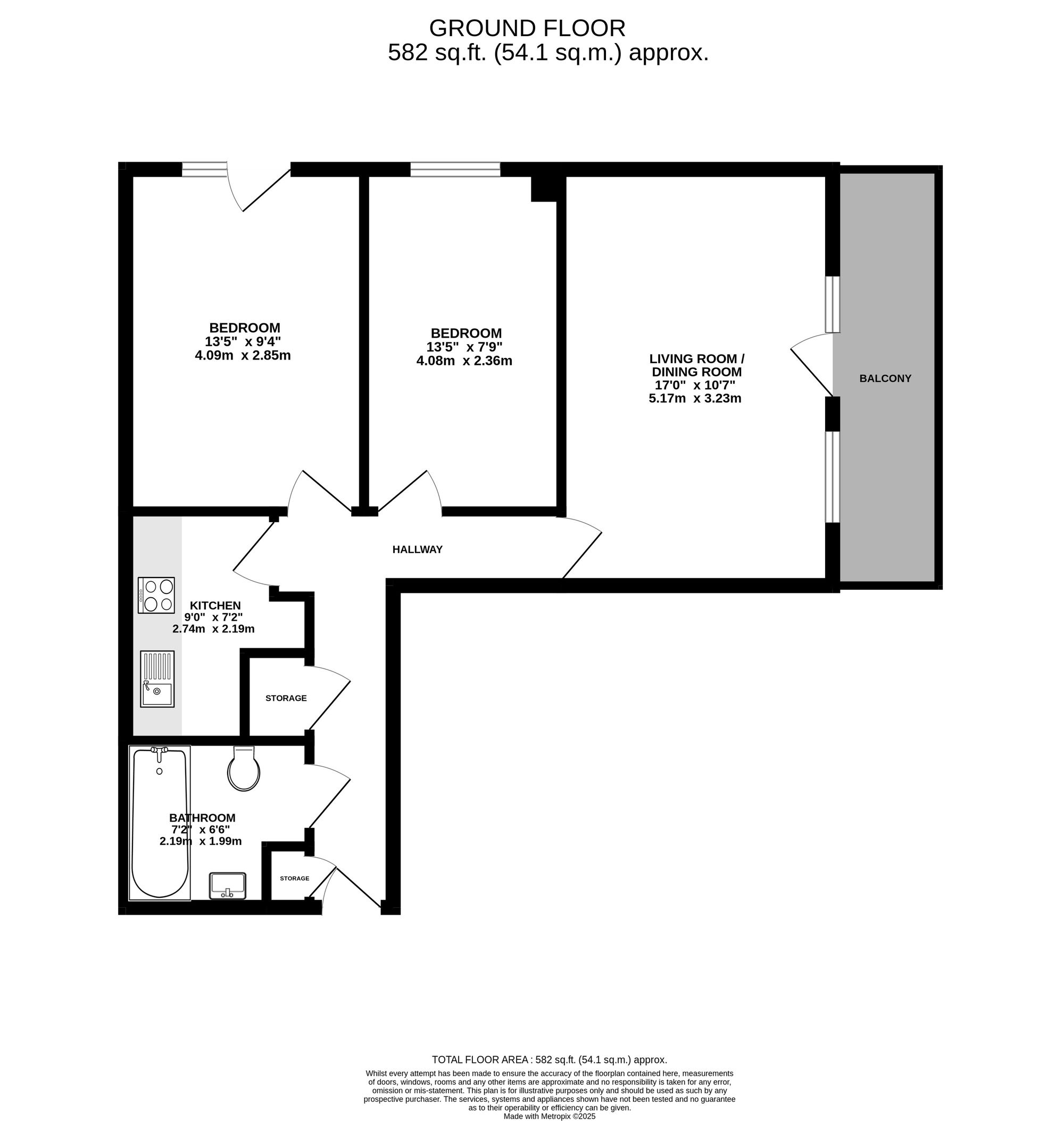
This beautifully presented top-floor two-bedroom apartment, located in Caterham, Surrey, has been modernised throughout and offers stylish, well-proportioned living ideal for first-time buyers or investors alike.

The property is accessed via a welcoming entrance hall, providing space for coats and shoes, with useful storage cupboards and a separate utility/storage cupboard located just off the hallway, offering excellent practicality.

The separate kitchen has been fully modernised and features integrated appliances complemented by a contemporary tiled splashback, creating a sleek and functional cooking space.

To the rear of the apartment is a bright open-plan living and dining room, perfect for both relaxing and entertaining. This generous living space opens directly onto a well-sized balcony, providing an ideal spot for outdoor seating.

There are two double bedrooms, both offering ample room for wardrobes and desk space. The main bedroom benefits from a Juliet balcony, adding to the sense of light and space.

The bathroom has been updated with a modern tiled design, continuing the apartment’s contemporary feel.

Further benefits include gated allocated parking, excellent storage throughout, and the advantage of a top-floor position.

Lease Length – 82 Year

Service Charge – £1500 PA

Ground Rent – £250 PA

Location –

Caterham, located in East Surrey, is bordered by the picturesque Surrey Hills on one side and London on the other. The town is divided by a valley, with Caterham on the Hill and Caterham Valley on either side, and the town centre situated in between. Caterham is renowned for the prestigious Caterham School, attracting numerous families and commuters who can reach London in just 40 minutes via Caterham Train Station.

In Caterham, residents have access to a range of local shops and amenities, along with charming cafés and restaurants. Enjoy a delightful dinner at Casa Lola tapas restaurant or grab a coffee and pastry at FILTR as you pass by. The town hosts various monthly and annual events, including comedy clubs, beer festivals, art exhibitions, and outdoor activities like horse riding, golf, and rambling.

Similar Property
£190,000 | Sold STC
Two bed apartment with open plan living, communal garden and residence parking. Close to Caterham Train Station and amenities.
Similar Property
£260,000 | Sold STC
Spacious ground floor apartment in Barnett Shaw, Oxted. Two double bedrooms, open-plan kitchen, direct garden access, extra storag...