Instant Valuation
Instant Valuation

Start your property search here

Sold STC
4 Bedroom
House

Guide Price £475,000

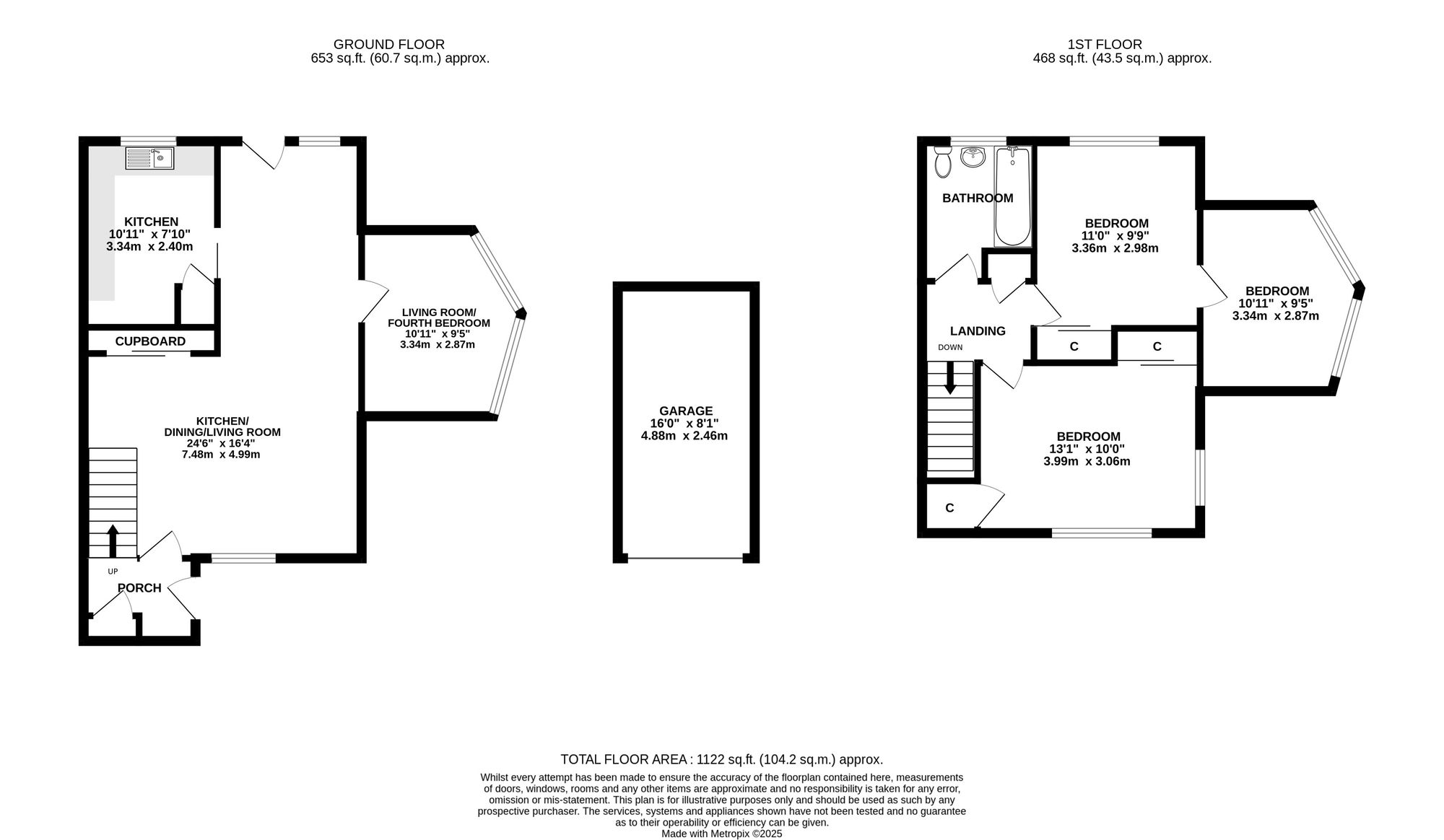
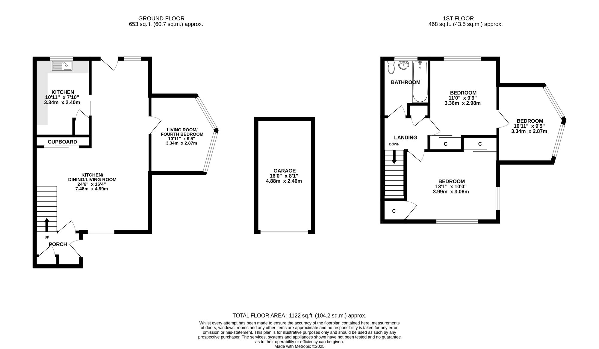
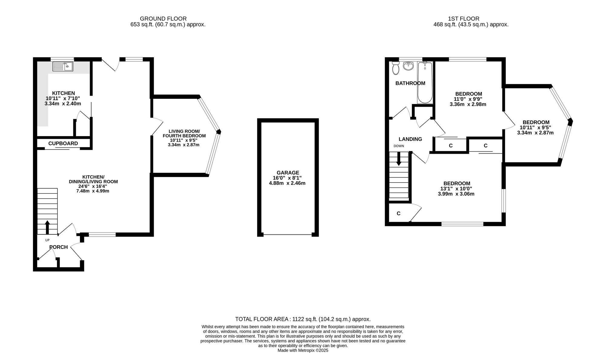
Spacious 3/4 bed end terrace on a quiet cul-de-sac near schools, Oxted town and station. Offering great potential, wrap-around plot, garage en-bloc and flexible living space.

  • Bedroomsfour Bedrooms4
  • Bedroomsone Bathrooms1
  • Bedroomstwo Receptions2

Greenacres, Oxted, RH8

Guide Price £475,000

Spacious 3/4 bed end terrace on a quiet cul-de-sac near schools, Oxted town and station. Offering great potential, wrap-around plot, garage en-bloc and flexible living space.

Tucked away in a quiet cul-de-sac, this three/four-bedroom end of terrace home is perfectly positioned within easy reach of local primary schools, Oxted town centre, and the mainline train station offering direct links to London Bridge and London Victoria.

Coming to the market for the first time since 1968, the property is vacant and chain-free, presenting an exciting opportunity for first-time buyers or young families to modernise and create a wonderful home tailored to their own taste.

The property sits on a generous wrap-around plot and also benefits from a garage en-bloc. Inside, the ground floor offers a spacious open-plan living and dining room, a separate kitchen, and a versatile additional room which could serve as a fourth bedroom, playroom, or extra reception space.

Upstairs, there are three well-proportioned double bedrooms and a family bathroom.

With its excellent location, generous accommodation, and scope for improvement, this property offers the perfect blend of potential, space, and convenience — a rare opportunity in one of Oxted’s most desirable settings.

Location –

The charming and historic town of Oxted is situated at the base of the North Downs, offering a delightful small-town vibe. Its quaint high street is adorned with picturesque Tudor-style, timber-framed buildings housing elegant boutiques, independent shops, restaurants, and cafes. When you visit, be sure to try the delectable pizza and cocktails at Cucina or enjoy a drink at one of the local pubs like The Crown Inn, The Wheatsheaf, or The Haycutter. Oxted also has its own Everyman cinema, leisure centre, Barn Theatre, and is close to stunning National Trust sites and countryside such as Limpsfield Common, Glebe Meadow and Oxted Downs. Families and commuters are attracted to the area for its excellent schools like Moor House School & College, St Mary’s School, Tandridge Village Pre School, and Little Oaks. With direct train links to Central London in just 35 minutes and easy access to the M25, Gatwick Airport is also reachable within 30 minutes by car.

 

Similar Property
£425,000 | For Sale
Guide price £425,000-£450,000. Charming four-bed terraced home in Whyteleafe. Three floors, ensuite to main bedroom, garden, dri...
Similar Property
£450,000 | For Sale
Guide Price £450,000 - £475,000. Modern townhouse in serene community near town centre and stations. Versatile layout, en-suite ...