Instant Valuation
Instant Valuation

Start your property search here

For Sale
3 Bedroom
House

In Excess of £520,000

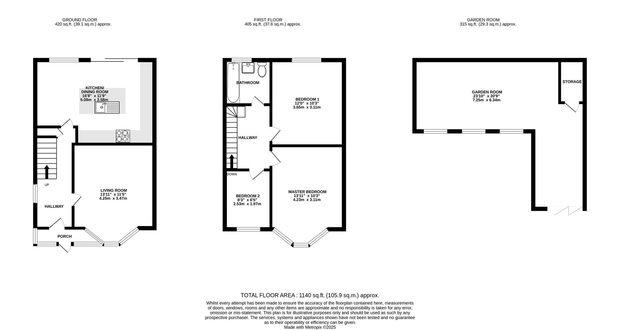
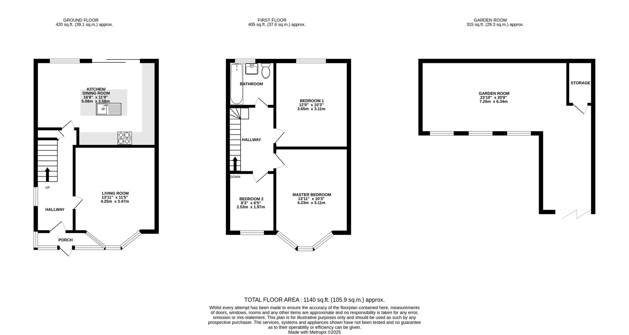
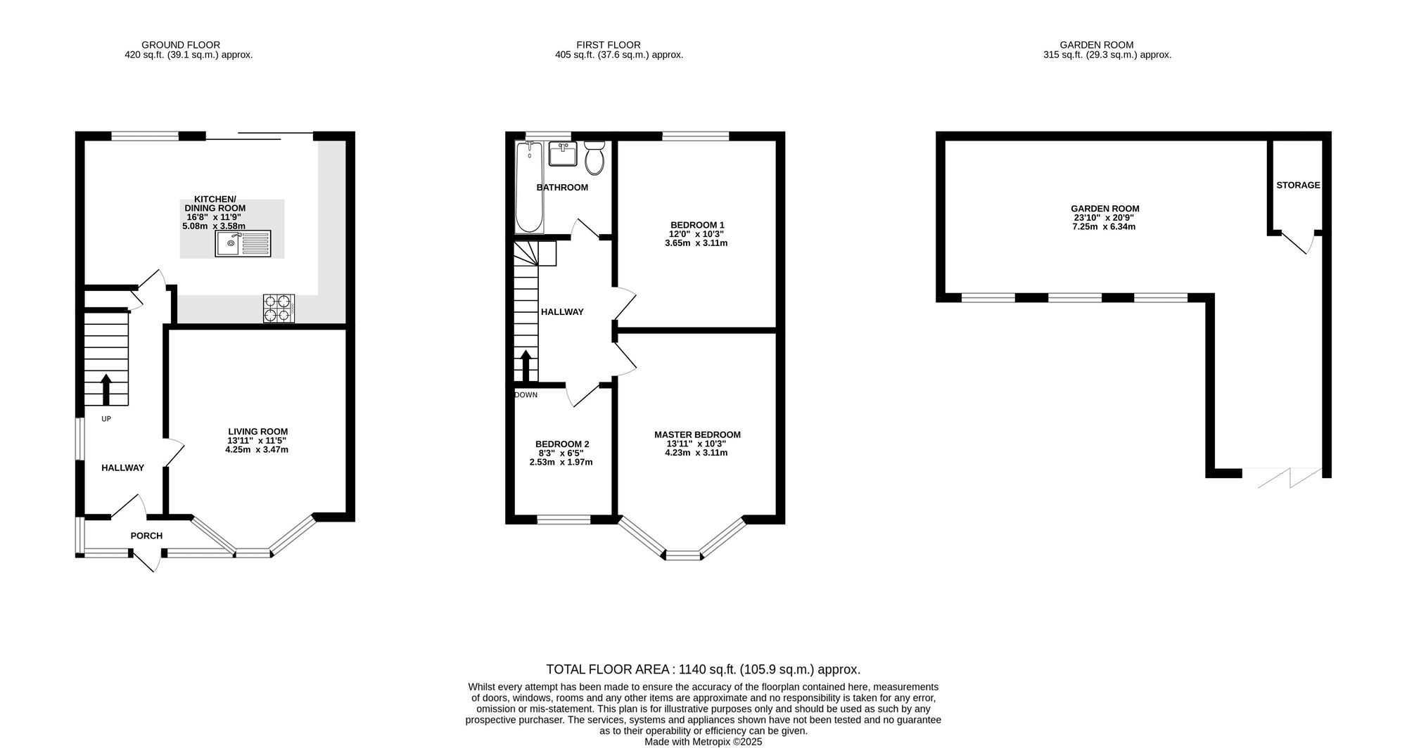
Beautiful three bedroom semi detached home with open-plan kitchen diner, landscaped garden, garden room, and parking for two cars.

  • Bedroomsthree Bedrooms3
  • Bedroomsone Bathrooms1
  • Bedroomsone Receptions1

Elm Park Gardens, South Croydon, CR2

In Excess of £520,000

Beautiful three bedroom semi detached home with open-plan kitchen diner, landscaped garden, garden room, and parking for two cars.

Nestled in a sought after residential road in South Croydon, this stunning three bedroom semi detached home combines modern living with a warm, homely feel.

Upon entering through the welcoming porch, you are greeted by a bright hallway leading to a spacious front living room, complete with a charming bay window and an eye catching feature wood panelled wall. To the rear, the heart of the home is the contemporary kitchen/diner thoughtfully designed with a stylish feature island, ample storage, and sleek sliding glass doors opening directly onto the garden, perfect for entertaining or family gatherings.

Upstairs, the first floor offers three bedrooms, two generous doubles and a well proportioned single alongside a modern family bathroom.

The beautifully landscaped rear garden is mainly laid to lawn, complemented by a raised decking area ideal for outdoor dining and relaxation. A versatile garden room sits at the rear, currently used as a home gym and bar area, offering great potential as an office or studio.

Further benefits include a single garage to the side of the property and a large driveway providing off street parking for two cars.

This lovely home is ideally suited to families and professionals alike, offering a perfect blend of comfort, style, and practicality in a desirable South Croydon location.

Tenure: Freehold

EPC: TBC

Council Tax: E

Location:

Elmpark Gardens is a sought after residential road in Selsdon.

Selsdon features a high street with a selection of local shops, restaurants and cafes.

The transport links are really convenient here, with the 433 and 64 bus routes taking you to East Croydon train station. East Croydon offers a mainline service for the commuter into multiple destinations including London Bridge, London Victoria and Gatwick Airport.

Within a short distance of the property is plenty of open green space with the Bird Sanctuary and Farleigh Common both excellent spots for a Sunday afternoon stroll. Farleigh Golf Club is also close by and is set in 350 acres of peaceful surroundings, the clubhouse offers fantastic views over the countryside. We also recommend trying The Harrow pub in Farleigh, a great spot for Sunday lunch.

The highly renowned Croydon High School is an independent school for girls and is just a mile from the property. Greenvale primary is only 0.7 miles away and Selsdon Primary is also situated nearby.

Similar Property
£475,000 | For Sale
Modern three bedroom first floor apartment at Bennat Apartments, Purley. Open-plan living/ kitchen, two balconies, en-suite master...
Similar Property
£460,000 | Sold STC
A stunning three-bedroom, premium apartment, offering sophisticated open-plan living bathed in natural light, complete with a priv...